Te koop Bouwgrond 965 m² voor open bebouwing te Du...

Beschrijving van   

Vergelijk realty's

Te koop Bouwgrond 965 m² voor open bebouwing te Duffel

Bouwgrond 965 m² voor open bebouwing te Duffel Bouwgrond 965 m² voor open bebouwing te Duffel Bouwgrond 965 m² voor open bebouwing te Duffel Bouwgrond 965 m² voor open bebouwing te Duffel
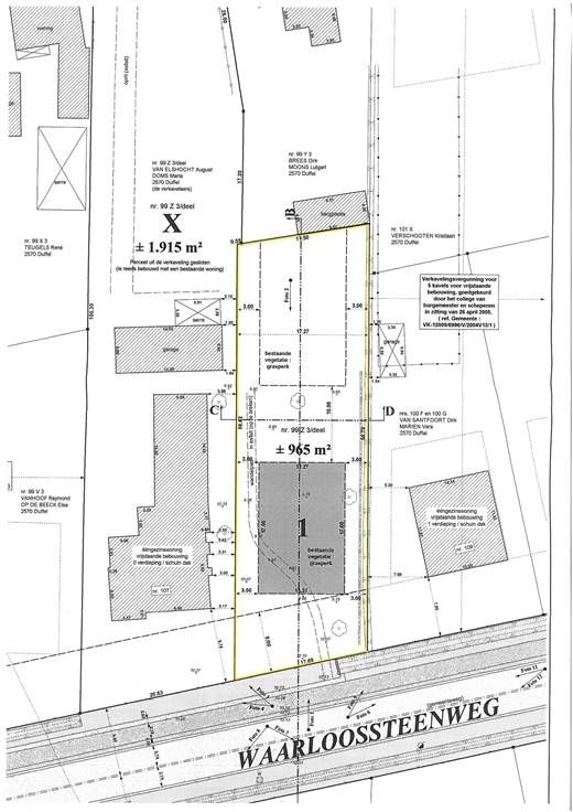
Op zoek naar een gunstige locatie om uw droomwoning te realiseren? Dit ruime perceel van 965 m² biedt een uitstekende gelegenheid om een vrijstaande eengezinswoning te bouwen die volledig aansluit bij uw wensen. Dankzij de zuidelijke oriëntatie geniet u de hele dag van natuurlijk zonlicht in de tuin. De bebouwbare zone voor het hoofdgebouw meet 11,27 meter breed en 17 meter diep ideaal om een woning op maat te ontwerpen. Daarnaast is er plaats voorzien voor bijgebouwen binnen de aangeduide bouwstrook, met een minimumafstand van 10 meter tussen de achtergevel en de perceelsgrens. In totaal mag er tot 75 m² aan bijgebouwen worden opgericht, perfect voor een garage, tuinhuis of hobbyruimte. De stedenbouwkundige voorschriften zijn op aanvraag beschikbaar via ons kantoor. De locatie van het perceel zorgt ervoor dat u snel toegang heeft tot de belangrijkste invalswegen. Binnen enkele minuten bereikt u de oprit van de autosnelweg, wat zorgt voor een vlotte verbinding naar o.a. nabijgelegen steden en voorzieningen. De royale perceelgrootte biedt voldoende ruimte rondom de woning en creëert een gevoel van privacy en openheid. Grijp deze unieke kans om uw ideale thuis te bouwen op een strategisch gelegen locatie! Neem vandaag nog contact met ons op via info@vastgoedplus.be of 015/200 999.
Type vastgoed Grond
Prijs 385.000