Te koop Bouwgrond te koop in Haacht!

Beschrijving van   

Vergelijk realty's

Te koop Bouwgrond te koop in Haacht!

Bouwgrond te koop in Haacht! Bouwgrond te koop in Haacht! Bouwgrond te koop in Haacht! Bouwgrond te koop in Haacht! Bouwgrond te koop in Haacht! Bouwgrond te koop in Haacht! Bouwgrond te koop in Haacht! Bouwgrond te koop in Haacht!
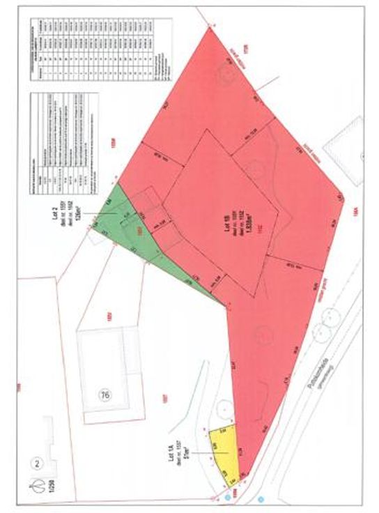
Ruime bouwgrond met prachtig landelijk zicht te koop in Haacht! Een prachtig achterliggend perceel bouwgrond van 18 are 38 ca gelegen in Haacht. Zoek je een thuis in alle rust, wakker worden in de natuur, dan is deze plek beslist iets voor jou. Goede verbinding richting Aarschot, Hasselt, Leuven en Brussel. Er mag hier gebouwd worden volgens de algemene regels van ruimtelijke ordening voor OB: Bouwzone: 413 m² waarvan max 250 m² mag bebouwd worden Max bouwdiepte: 15 m. Max kroonlijsthoogte: 3.5 m. Wil jij hier je nieuwe thuis bouwen? Mail dan naar info@future-home.be of bel ons op 016 90 10 21. Woongebied en agrarisch gebied, Geen voorkooprecht, Geen dagvaarding, Verkavelingsvergunning
Type vastgoed Grond
Prijs 337.400