Te koop Exclusief perceel van ca. 2336m² in presti...

Beschrijving van   

Vergelijk realty's

Te koop Exclusief perceel van ca. 2336m² in prestigieuze Koningshof

Exclusief perceel van ca. 2336m² in prestigieuze Koningshof Exclusief perceel van ca. 2336m² in prestigieuze Koningshof
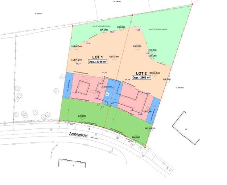
Exclusief perceel bouwgrond van ca. 2336m² in het prestigieuze Koningshof Bent u op zoek naar een unieke kans om uw droomwoning te realiseren? Dit prachtig gelegen bouwperceel langs de prestigieuze Ambiorixlei biedt alles voor een luxueuze vrijstaande woning in een groene en rustige omgeving, met uitstekende bereikbaarheid en nabijheid van alle voorzieningen. Met een royale straatbreedte van ca. 30m en een totale grondoppervlakte van ca. 2.366m² is dit een zeldzaam aanbod. Hier heeft u de ruimte om een moderne villa te ontwerpen die perfect aansluit bij uw wensen, inclusief de mogelijkheid voor het plaatsen van een zwembad en een poolhouse. Troeven van dit perceel: Uitzonderlijke ligging: in een van de meest begeerde buurten van Schoten. Flexibele bouwvoorschriften: geschikt voor een eigentijdse en ruime woning. Optimale bereikbaarheid: vlakbij invalswegen, de Ring en diverse faciliteiten. Privé en ruimtelijk: ideaal voor wie op zoek is naar rust en exclusiviteit. Meer details over de bouwvoorschriften en de verkaveling zijn op aanvraag beschikbaar. Dit is uw kans om een uitzonderlijke investering te doen in een uniek perceel dat perfect aansluit bij uw levensstijl. Contacteer LISTED: +32 3 283 51 51.
Type vastgoed Grond
Prijs 595.000