Te koop Unieke Kans: Commerciële Toplocatie in het Hart van Itegem
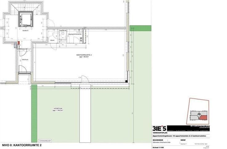
Unieke Kans: Commerciële Toplocatie in het Hart van Itegem Bent u op zoek naar een slimme investering of een perfecte locatie voor uw kantoor, praktijk of handelszaak? Deze instapklare commerciële ruimte van 95 m² combineert zichtbaarheid, bereikbaarheid en veelzijdigheid — ideaal voor ondernemers én investeerders! Gelegen in het bruisende centrum van gezellig Itegem, biedt deze gelijkvloerse unit alles wat u nodig heeft voor een professionele uitstraling en een optimaal rendement. Troeven op een rij: Ruime oppervlakte van 95 m² met een plafondhoogte van 2,80 m 2 private parkeerplaatsen inbegrepen Airconditioning voor optimaal comfort Voor- en zijtuin voor extra uitstraling en rust Ingerichte keuken, aparte WC én praktische berging Flexibel inzetbaar: ideaal als kantoor, praktijkruimte of handelszaak Deze locatie is niet alleen perfect om zelf te gebruiken, maar vormt ook een zekere en veilige opbrengsteigendom dankzij de gunstige ligging en brede inzetbaarheid. ?? Interesse? Voor meer info of een vrijblijvende bezichtiging, contacteer: Ronny Storms ?? 0487/66 33 60 ?? ronnystorms@janssenenjanssen.be