Te koop Huis

Beschrijving van   

Vergelijk realty's

Te koop Huis

Huis Huis Huis Huis Huis Huis
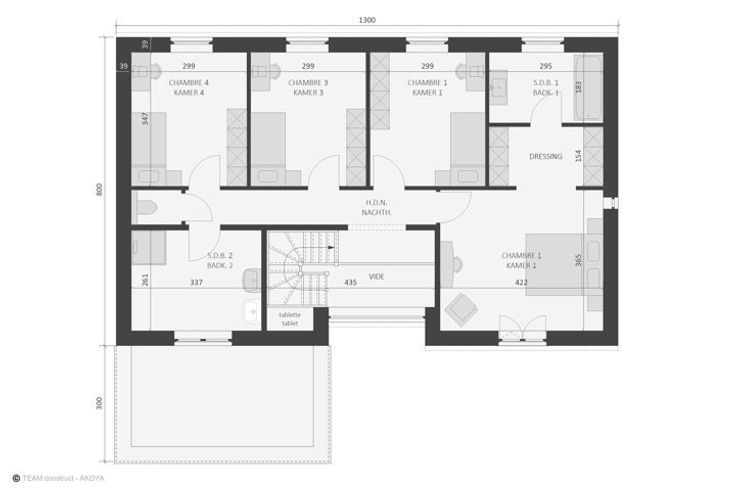
Deze nieuwbouwwoning kan voor u gerealiseerd worden volgens de meest energiezuinige norm ,dankzij warmtepomp met vloerverwarming, driedubbele beglazing , Ventilatie D en 14 zonnepanelen. De architectuur, indeling en afwerking kunnen nog gewijzigd worden volgens uw smaak, De prijs voor dit project ALL IN bedraagt 755.693€ (Grond + registratie + notaris + woning + 21% btw + aansluiting nutsvoorzieningen) Voor meer info neem contact via info@teamconstruct.be of 02/556.47.56
Type vastgoed Huis
Prijs 641.606
Bewoonbare opp. 220
Aantal slaapkamers 4
Aantal badkamers 2