Te koop VERGUND PROJECT: Verbouwing naar 4 grondge...

Beschrijving van   

Vergelijk realty's

Te koop VERGUND PROJECT: Verbouwing naar 4 grondgebonden woningen...

VERGUND PROJECT: Verbouwing naar 4 grondgebonden woningen... VERGUND PROJECT: Verbouwing naar 4 grondgebonden woningen... VERGUND PROJECT: Verbouwing naar 4 grondgebonden woningen... VERGUND PROJECT: Verbouwing naar 4 grondgebonden woningen... VERGUND PROJECT: Verbouwing naar 4 grondgebonden woningen... VERGUND PROJECT: Verbouwing naar 4 grondgebonden woningen...
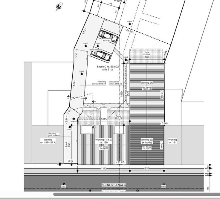
Project gelegen te Heist-op-den-Berg, op wandelafstand van het station van Booischot. Dit vergund project omvat de verbouwing van een woning naar 4 grondgebonden woningen op een zuid oost gericht perceel van 8 are 21 centiare.  Momenteel staat er een woning met aanbouw op het perceel. Dit mag totaal gerenoveerd worden en verbouwd worden tot volgende: - 4 woningen waarvan 1 woning met loods - Gemeenschappelijke fietsenstalling - Gemeenschappelijke berging  - 4 staanplaatsen achteraan Alle woningen beschikken over een zonnig terras, ruime slaapkamers. Plannen en omgevingsvergunning kunnen verkregen worden via ons kantoor Dupont Vastgoed. Contacteer ons voor meer inlichtingen op 015 15 15 15  Renovatieplicht: onbekend
Type vastgoed Grond
Prijs 490.000