Te koop Garagestaanplaatsen en bergingen te koop (...

Beschrijving van   

Vergelijk realty's

Te koop Garagestaanplaatsen en bergingen te koop (Residentie “De Toe

Garagestaanplaatsen en bergingen te koop (Residentie “De Toe Garagestaanplaatsen en bergingen te koop (Residentie “De Toe Garagestaanplaatsen en bergingen te koop (Residentie “De Toe Garagestaanplaatsen en bergingen te koop (Residentie “De Toe
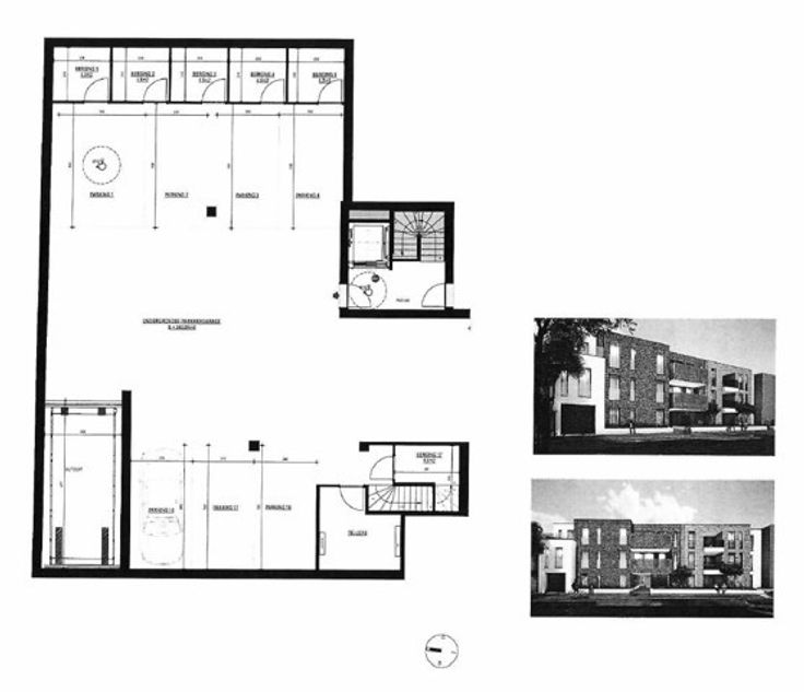
Nog drie staanplaatsen en/of 3 bergingen te koop in de droge moderne keldergarage van residentie “De Toekomst” te Kessel. Dit complex werd in 2022 opgeleverd. De ingang is gelegen ter hoogte van Stationssteenweg nummer 30. De keldergarage is toegankelijk via een zender die de sectionaalpoort bediend én via een badge of bediening van een autolift. De staanplaatsen zijn ruim, er is een grote draaicirkel voorzien en uw wagen staat veilig gestald in de afgesloten garage. Deze is enkel toegankelijk voor eigenaars van de bovenliggende appartementen of eigenaars van een aparte staanplaats. Prijzen garages vanaf 22.000 EUR (*excl. btw op constructie en registratie op grondaandeel). Prijzen bergingen vanaf 5.100 EUR (*excl. btw op constructie en registratie op grondaandeel). Meer inlichtingen? Bel 0484 82 23 37 of 03 284 30 13.
Type vastgoed Garage
Prijs 22.000