Te koop Lage-energie woning Akoya

Beschrijving van   

Vergelijk realty's

Te koop Lage-energie woning Akoya

Lage-energie woning Akoya Lage-energie woning Akoya
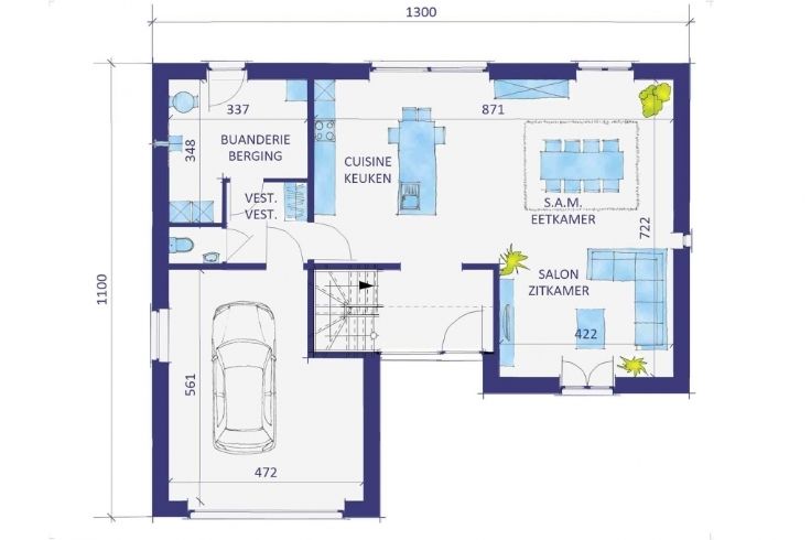
Akoya met plat dak of hellend dak met leien. Voor u creëren wij de architectuur van morgen: Op een zeer eigentijdse wijze bedacht dankzij haar grote leefruimten, onderscheidt het design van deze villa zich door haar ronduit modern schrijnwerk en de uitspringende volumes van haar tweekleurige gevels. In de zuidwaarts georiënteerde, grote living van meer dan 50 m² gaan licht en ruimte hand in hand. In de garage is ruimte voorzien voor uw motor of voor fietsen. De garage van de versie AKOYA G2 is voorzien voor 2 auto's. De bovenverdieping met zijn mooie hal in mezzanine omvat 4 grote slaapkamers waarvan één ouderlijke suite met badkamer en dressing. Er is een tweede, grote badkamer voorzien, alsook een aparte wc.Sleutel-op-de-deur "lage-energie" woning Wat voorzien is in onze prijzen • De prijzen van de woning op basis van onze lastenboek en plannen • De bodemonderzoek uitgevoerd door een gespecialiseerde onderneming • De stabiliteitsstudie door een studiebureel • Een energie balans van uw woning door een studiebureel • Luchtdichtheidstest • De honoraria van de veiligheidscoördinator • Tienjarige aansprakelijkheidsverzekering • BTW 21% • Installatie van fotovoltaïsche panelen Meer informatie: 02/556.47.56 info@teamconstruct.be
Type vastgoed Huis
Prijs 319.412
Bewoonbare opp. 220
Aantal slaapkamers 4
Aantal badkamers 2