Te koop Lage-energie woning Vision

Beschrijving van   

Vergelijk realty's

Te koop Lage-energie woning Vision

Lage-energie woning Vision Lage-energie woning Vision
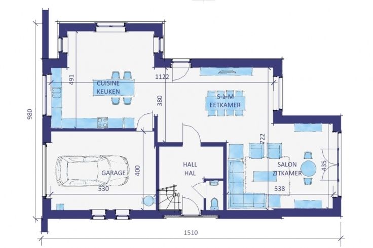
Villa Vision is ontworpen voor smalle gronden, zonder toegevingen te doen op het vlak van levenskwaliteit en architectuur. Het interieur is schitterend en leent zich uitstekend voor al uw wensen op het vlak van decoratie en cocooning. Een keuken met centraal kookeiland, een salon met plaats voor een open haard, een grote ouderlijke suite met terras... Kortom: een droom. Villa Vision zal u verleiden met het ruimtegevoel dat van alle leefruimtes afstraalt. De perspectieven zijn zeer mooi, zowel vanuit het salon als vanuit de keuken of de ouderlijke suite, het licht stroomt diep in het interieur binnen via de brede raampartijen. www.teamconstruct.be 02/556.47.56Meer informatie: 02/556.47.56 info@teamconstruct.be Sleutel-op-de-deur "lage-energie" woning Wat voorzien is in onze prijzen • De prijzen van de woning op basis van onze lastenboek en plannen • De bodemonderzoek uitgevoerd door een gespecialiseerde onderneming • De stabiliteitsstudie door een studiebureel • Een energie balans van uw woning door een studiebureel • Luchtdichtheidstest • De honoraria van de veiligheidscoördinator • Tienjarige aansprakelijkheidsverzekering • BTW 21% • Installatie van fotovoltaïsche panelen
Type vastgoed Huis
Prijs 326.555
Bewoonbare opp. 219
Aantal slaapkamers 3
Aantal badkamers 1