Te koop Lage-energie Club G4

Beschrijving van   

Vergelijk realty's

Te koop Lage-energie Club G4

Lage-energie Club G4 Lage-energie Club G4
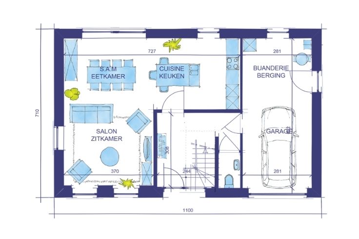
Als variante van de villa CLUB 4 werd de CLUB 4G herzien om er een garage in te integreren. Ze is perfect geschikt als eerste woning of voor een huurinvestering. Dankzij haar uitstekende prijs/kwaliteit-verhouding is de villa CLUB 4G een vaste waarde in ons gamma, en past ze zich aan aan alle terreinen en alle gezinnen. Kom onze kijkwoningen bezoeken… Meer info op www.teamconstruct.be of 02/556 47 56Sleutel-op-de-deur "lage-energie" woning Wat voorzien is in onze prijzen • De prijzen van de woning op basis van onze lastenboek en plannen • De bodemonderzoek uitgevoerd door een gespecialiseerde onderneming • De stabiliteitsstudie door een studiebureel • Een energie balans van uw woning door een studiebureel • Luchtdichtheidstest • De honoraria van de veiligheidscoördinator • Tienjarige aansprakelijkheidsverzekering • BTW 21% • Installatie van fotovoltaïsche panelen
Type vastgoed Huis
Prijs 216.116
Bewoonbare opp. 156
Aantal slaapkamers 4
Aantal badkamers 1