Te koop Zeer ruim en groot commercieel handelspand in hartje Bras...
Deze ruime commerciële handelspand heeft heel veel potentieel om uw zaak verder te ontplooien.
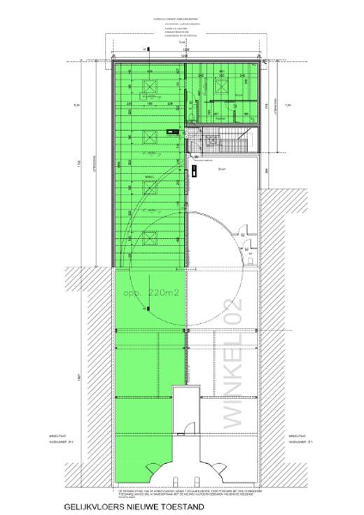
De handelsruimte van 220m2 is aan het linkse gedeelte van het gebouw.
Bij het binnenkomen is er een grote en brede ruimte die ingedeeld kan worden zoals je wenst.
Vandaag zijn de ruimtes achterliggend ingedeeld met valse wanden maar kan ook als 1 geheel gebruikt worden. Aansluitend achteraan is er ook een keuken en een toilet met handenwasser aanwezig.
EPC 20230921-0002995242-KNR-1 Label B - electrische keuring arei conform.
Wenst u vrijblijvend een bezichtiging of meer informatie, aarzel niet om mij te contacteren.
Chantal@domus-immobilien.be of 0468/156151
Renovatieplicht: onbekend