Te koop Zuidgerichte bouwgrond in centrum van Dessel

Beschrijving van   

Vergelijk realty's

Te koop Zuidgerichte bouwgrond in centrum van Dessel

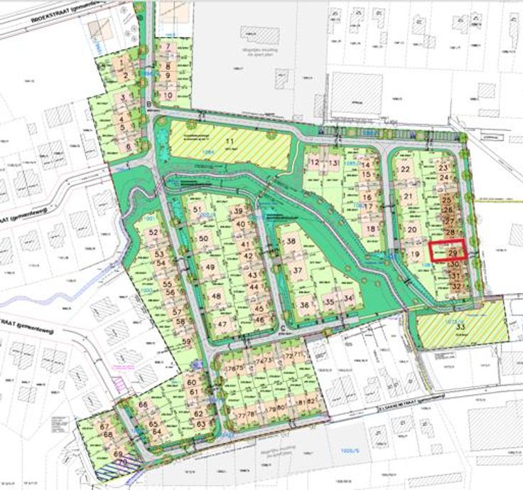
Zuidgerichte bouwgrond in centrum van Dessel
Dit zuidgerichte bouwperceel voor een halfopen bebouwing van 242 m² ligt in een rustige, doodlopende straat binnen een nieuwe verkaveling. Op slechts 200 meter bevinden zich 2 supermarkten, bakker, slager, gemeentehuis, lagere school en bushalte. De bouwbreedte bedraagt 7.50 m en de bouwdiepte 10m. Naast de woning mag nog een carport of garage van 3 m op 7 m gebouwd worden plus nog een extra berging van 2 m op 3 m.
Type vastgoed Grond
Prijs 102.500