Te koop Bouwgrond van 749,34m² voor vrijstaande w...

Beschrijving van   

Vergelijk realty's

Te koop Bouwgrond van 749,34m² voor vrijstaande woning te Tielen.

Bouwgrond  van 749,34m² voor vrijstaande woning te Tielen. Bouwgrond  van 749,34m² voor vrijstaande woning te Tielen.
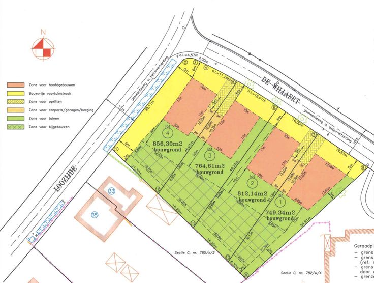
Bouwgrond van 749,34 m² geschikt voor het bouwen van een vrijstaande woning, deel uitmakend van een kleine verkaveling te Tielen. Het perceel is rustig gelegen nabij het centrum van Tielen in een groene omgeving. Perceelbreedte vooraan van 19,97 meter en een perceeldiepte van circa 50 meter. Het perceel is geschikt voor het bouwen van een open bebouwing met een gevelbreedte van circa 12 meter, bouwdiepte gelijkvloers 17 meter, 13 meter 1ste verdieping en 9 meter onder dak. Zowel zadeldak als platdak zijn mogelijk. In de zijtuinstrook ter hoogte van lot 2 is een garage of carport toegelaten en achteraan is een zone voor bijgebouwen voorzien met een maximale oppervlakte van 75m². De loten zijn gelegen op wandel- en fietsafstand van het centrum van Tielen, winkels, scholen en het treinstation. Troeven: •Groot perceel. •Vrijstaande bebouwing. •Uitstekende zuidwest oriëntatie met zon vanaf de middag. •Treinstation en centrum op fietsafstand. •Bijgebouw mogelijk. Indien u meer informatie wenst (verkavelingsplan, verkavelingsvoorschriften, …) of een plaatsbezoek wenst, tel. 014715008 of e-mail: info@vastgoedpicavet.be Renovatieplicht: onbekend
Type vastgoed Grond
Prijs 217.000