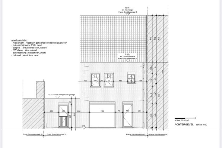
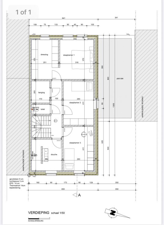
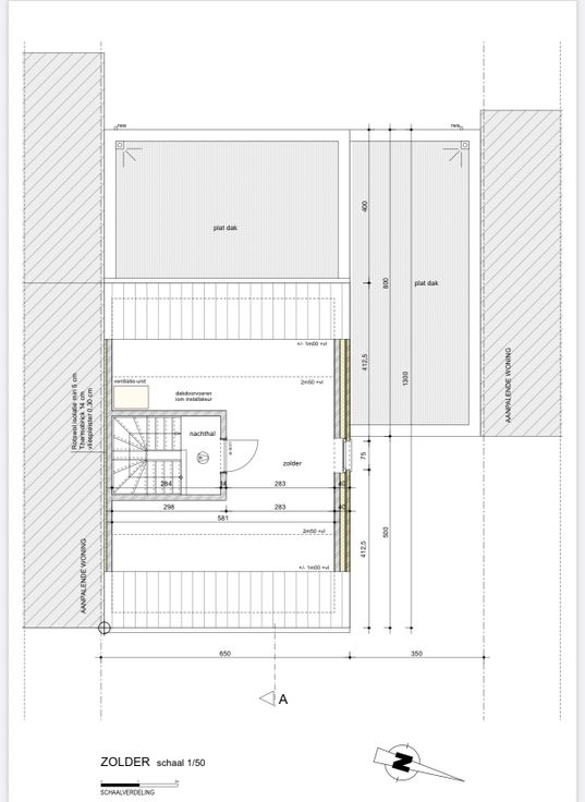
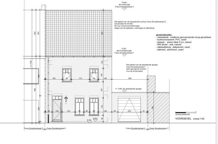
Te koop Half-open bouwgrond met reeds goedgekeurde...

Beschrijving van   

Vergelijk realty's

Te koop Half-open bouwgrond met reeds goedgekeurde plannen

Half-open bouwgrond met reeds goedgekeurde plannen Half-open bouwgrond met reeds goedgekeurde plannen Half-open bouwgrond met reeds goedgekeurde plannen Half-open bouwgrond met reeds goedgekeurde plannen Half-open bouwgrond met reeds goedgekeurde plannen Half-open bouwgrond met reeds goedgekeurde plannen Half-open bouwgrond met reeds goedgekeurde plannen
mooi gelegen grond met eigen oprit
Type vastgoed Grond
Prijs 145.000