Te koop Vernieuwd kantoorgebouw te koop/te huur vl...

Beschrijving van   

Vergelijk realty's

Te koop Vernieuwd kantoorgebouw te koop/te huur vlakbij de Ring

Vernieuwd kantoorgebouw te koop/te huur vlakbij de Ring Vernieuwd kantoorgebouw te koop/te huur vlakbij de Ring Vernieuwd kantoorgebouw te koop/te huur vlakbij de Ring Vernieuwd kantoorgebouw te koop/te huur vlakbij de Ring Vernieuwd kantoorgebouw te koop/te huur vlakbij de Ring Vernieuwd kantoorgebouw te koop/te huur vlakbij de Ring Vernieuwd kantoorgebouw te koop/te huur vlakbij de Ring Vernieuwd kantoorgebouw te koop/te huur vlakbij de Ring Vernieuwd kantoorgebouw te koop/te huur vlakbij de Ring
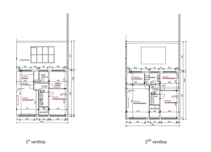
Recent volledig gerenoveerd kantoorgebouw met vernieuwde gevel, dak, technieken en interieur. Gunstig gelegen nabij de E19 en de Ring. EPC-NR: label 'B' .
Type vastgoed Commercieel
Prijs 498.000
Bewoonbare opp. 178