Te koop Casco penthouse met terras en autostaanpla...

Beschrijving van   

Vergelijk realty's

Te koop Casco penthouse met terras en autostaanplaats.

Casco penthouse met terras en autostaanplaats. Casco penthouse met terras en autostaanplaats. Casco penthouse met terras en autostaanplaats. Casco penthouse met terras en autostaanplaats. Casco penthouse met terras en autostaanplaats.
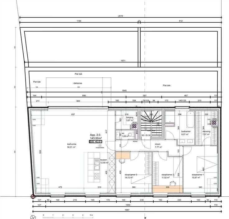
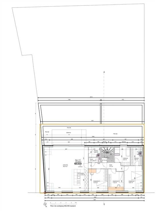
Dit casco appartement op de tweede verdieping beschikt over een bewoonbare oppervlakte van 140m² en kent een rustige ligging in een kleine residentie dewelke slechts vijf appartementen telt. Winkels, scholen, het openbaar vervoer en belangrijke verbindingswegen zijn vlakbij gelegen. De oplevering zal gebeuren volgens het water- en winddicht principe zijnde afgewerkte gevels, dak inclusief isolatie en buitenschrijnwerk. De woning kan verder afgewerkt worden naar smaak en budget van de koper. De indeling is als volgt: een inkomhal met gastentoilet, een lichtrijke woonkamer met een open keuken (totale opp: 66m²), een berging-wasplaats (3,7m²) en drie slaapkamers (16m²; 11,5m²; 15m²), een badkamer (9m²) en een dressing (7,5m²). Verder is er een terras (26,65m²) aanwezig en is er één parkeerplaats horende bij het appartement. De oplevering van de woning is voorzien tegen december 2024. EPB-startverklaring in opmaak. Autostaanplaats en afwerking van de gemeenschappelijke delen zijn reeds verwerkt in de vraagprijs. Contacteer ons gerust bij interesse. 015 711 000 - info@clavisvastgoed.be
Type vastgoed Appartement
Prijs 239.000
Bewoonbare opp. 140
Aantal slaapkamers 3
Aantal badkamers 1