Te koop Vrijstaande woning op unieke locatie

Beschrijving van   

Vergelijk realty's

Ligging
Varenstraat 18
2840 Rumst

Contactgegevens
+32476226570
+32479795342
E-mail deze adverteerder
BEWAREN
DOORSTUREN

Te koop Vrijstaande woning op unieke locatie

Vrijstaande woning op unieke locatie Vrijstaande woning op unieke locatie Vrijstaande woning op unieke locatie Vrijstaande woning op unieke locatie Vrijstaande woning op unieke locatie Vrijstaande woning op unieke locatie Vrijstaande woning op unieke locatie Vrijstaande woning op unieke locatie Vrijstaande woning op unieke locatie Vrijstaande woning op unieke locatie Vrijstaande woning op unieke locatie Vrijstaande woning op unieke locatie Vrijstaande woning op unieke locatie Vrijstaande woning op unieke locatie Vrijstaande woning op unieke locatie Vrijstaande woning op unieke locatie Vrijstaande woning op unieke locatie Vrijstaande woning op unieke locatie Vrijstaande woning op unieke locatie Vrijstaande woning op unieke locatie
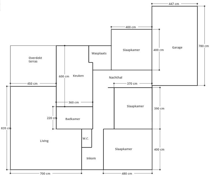
Zeer gunstig gelegen, instapklare, vrijstaande woning met 3 ruime slaapkamers op een perceel van 2337 m². De oprit van de E19 ligt op 2 km. De achtertuin, met een in 2022 aangelegde zwemvijver, is zuid gericht. Het perceel is bijna 30 m breed. De bewoonbare oppervlakte is 190m². De woning omvat een inkomhal met gastentoilet, 3 ruime slaapkamers, badkamer met douche en ligbad (vernieuwd 2018), keuken (vernieuwd 2014), ruime L-vormige living (47m²) met eiken parket, hal met ingebouwde kasten, wasplaats, garage en bergzolder. Er is parkeergelegenheid aan de woning voor ten minste 4 wagens. Achteraan het huis is een overdekt en een hardhouten open terras, twee tuinbergingen, een lounge en een stal en geeft een wijds zicht op de rustig blijvende, landelijke omgeving. De natuurlijke zwemvijver meet 8 bij 3,5 m. Er is mogelijkheid voorzien om een warmtepomp te plaatsen. De woning werd gebouwd in 1977, is gelegen in landbouwgebied maar is volledig vergund. Er is een alarminstallatie met bewegingsdetectie en rookmelding en zonnepanelen die nog recht geven op groenestroomcertificaten van 450 euro tot 2028. De opbrengst van de zonnepanelen is 3600 kwh per jaar. Onlangs is men begonnen met het aanleggen van riolering in de straat. Alle huizen moeten op deze riolering aangesloten worden. De aansluiting van de woning kan langs de tuin gebeuren.
Type vastgoed Huis
Prijs 749.000
Aantal slaapkamers 3
Aantal badkamers 1