Te koop centraal gelegen, gelijkvloerse cascoruim...

Beschrijving van   

Vergelijk realty's

Te koop centraal gelegen, gelijkvloerse cascoruimte met vergunning

centraal gelegen, gelijkvloerse  cascoruimte met vergunning centraal gelegen, gelijkvloerse  cascoruimte met vergunning centraal gelegen, gelijkvloerse  cascoruimte met vergunning
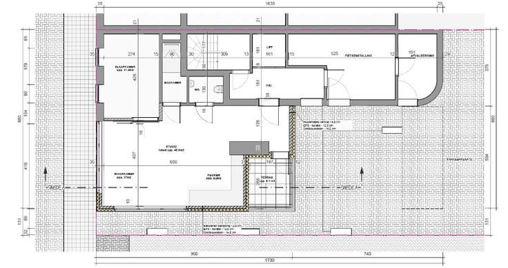
Deze moderne, lichte casco ruimte is op wandelafstand van de Grote Markt van Turnhout. Voor de ruimte werd vergunning afgeleverd voor omvormen van handelsruimte tot een studio/appartement met aparte slaapkamer, woonkamer, open keuken, wc, douchekamer en terras. Ruime kelderberging inbegrepen. De vergunning wordt samen met de casco ruimte aangeboden aan de koper. Het gebouw beschikt over een gemeenschappelijke fietsen- en afvalberging. Aparte nutsmeters. Lift in het gebouw aanwezig. Aankoop van een autostaanplaats mogelijk (niet inbegrepen in verkoopprijs) Voor meer informatie of een plaatsbezoek kan u ons contacteren op 0473/45.77.37 
Type vastgoed Huis
Prijs 135.000
Aantal slaapkamers 1