Te koop Villa

Beschrijving van   

Vergelijk realty's

Te koop Villa

Villa
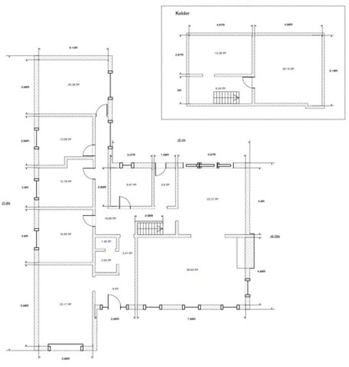
Aan de Lichtaartseweg in Herentals op een perceel van 812m2 en wordt momenteel gerenoveerd en wordt in afgewerkte staat verkocht. Hoe vroeger er wordt verkocht in de renovatie, hoe meer inspraak er gegeven kan worden in de keuze van materialen, toestellen en andere. De indeling: • Inkomhal, garage (24m²) met toegang tot zeer ruime zolder, apart toilet, woonkamer (40m²), keuken (25m²), badkamer, 4 slaapkamers (12m²-21m²) en een tuin van 180m² • Kelder van 40m² Het gaat om een totaalrenovatie • Er wordt een nieuwe gasinstallatie geplaatst • Alles van sanitair en de elektriciteitsinstallatie wordt volledig vervangen en conform gekeurd • Open keuken met kookeiland met een schuifraam (dubbel glas) naar de tuin toe • Volledig nieuw geïsoleerd dak • Nieuwe garagepoort • Er wordt een terras aangelegd tussen de keuken en de tuin • Alle ramen worden door driedubbelglas vervangen met nieuwe profielen
Type vastgoed Huis
Prijs 595.000
Bewoonbare opp. 363
Aantal slaapkamers 4
Aantal badkamers 1