Te koop Villa

Beschrijving van   

Vergelijk realty's

Te koop Villa

Villa Villa Villa Villa Villa Villa Villa
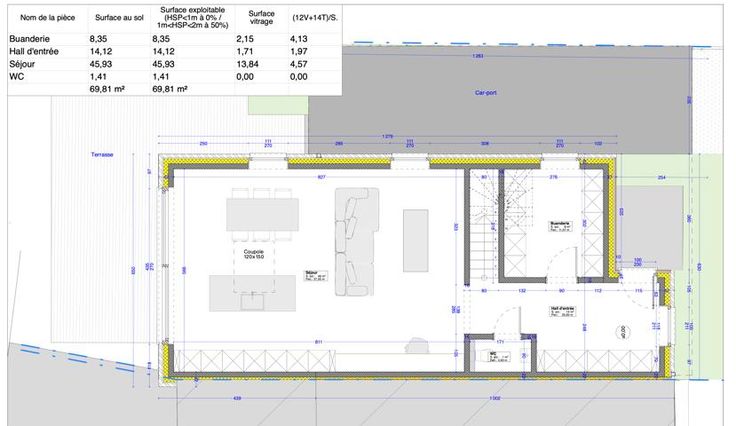
Alliance Partners vous propose un terrain avec permis déjà octroyé (2025) pour la construction d'une villa moderne 3 façades à Nimy. Cette villa pourrait comprendre 5 chambres et 3 salles d'eau. Il est est situé dans un endroit calme à proximité du bois, des accès autoroutiers, commerces, écoles,... Cette villa comprendra : Rez-de-chaussée (70m2) : Hall d'entrée avec espace grand vestiaire, buanderie avec accès direct sur les emplacements de parking latéraux, wc séparé, living avec cuisine ouverte. Etage 1 (50m2) : Hall de nuit, chambre parentale avec salle de douche, 2 chambres, salle de bain avec baignoire, douche et wc Etage 2 (50m2 au sol) : 2/3 chambres, salle de bain Extérieur : Terrasse, car-port pour 2 voitures Le prix comprend : - Le terrain - Le permis d'urbanisme octroyé en 2025 - Le raccordement à l'égout (déjà existant) Visites et renseignements à l'agence. Offre à partir de 79.000 euros.
Type vastgoed Huis
Prijs 79.000
Aantal slaapkamers 5