Te koop Prachtige duplex - eerste bewoning

Beschrijving van   

Vergelijk realty's

Te koop Prachtige duplex - eerste bewoning

Prachtige duplex - eerste bewoning Prachtige duplex - eerste bewoning Prachtige duplex - eerste bewoning Prachtige duplex - eerste bewoning Prachtige duplex - eerste bewoning Prachtige duplex - eerste bewoning Prachtige duplex - eerste bewoning Prachtige duplex - eerste bewoning Prachtige duplex - eerste bewoning
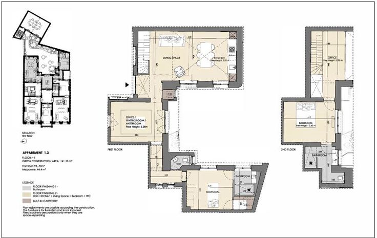
In het iconische gebouw ‘RR33’, gelegen op de Koningstraat ter hoogte van het Warandepark, op de 2e verdieping aan de achterzijde, stellen wij u deze prachtige lichtrijke duplex appartement van meer dan 140m2 voor. Het pand biedt u: een inkomhal, een ruime leefruimte met op maat gemaakte open keuken, een bureau met aparte ingang, een nachthal, een afzonderlijk toilet, een waskamer, twee slaapkamers (14 – 12m2) met elk een en-suite badkamer, een bureau in mezzanine (plafondhoogte 2,5m) en een ondergronds een privatieve kelder. Volledig nieuw en eerste bewoning. Dubbel glas. Elektriciteit conform. Beschikbaar bij akte. Op een excellente locatie nabij het openbaar vervoer, eveneens vlot bereikbaar met de auto en nabij winkels. Zal u bekoren door zijn lichtinval, rustige ligging langs de achterzijde en lichtinval. Zeker een bezoek waard!
Type vastgoed Appartement
Prijs 549.000
Bewoonbare opp. 141
Aantal slaapkamers 2
Aantal badkamers 2