Te koop Nieuwbouw KMO-kantoorunit te koop op zicht...

Beschrijving van   

Vergelijk realty's

Te koop Nieuwbouw KMO-kantoorunit te koop op zichtlocatie

Nieuwbouw KMO-kantoorunit te koop op zichtlocatie Nieuwbouw KMO-kantoorunit te koop op zichtlocatie Nieuwbouw KMO-kantoorunit te koop op zichtlocatie
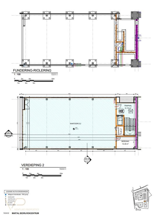
Nieuwbouw KMO-kantoorunit op verdieping 2 met houten lamellen bekleed.   Goed geïsoleerd conform EPB regelgeving - brandklasse C. Opstart werf: Q2 2025 - oplevering: Q3 2026  Technische voorzieningen - indrukwekkende glaspartij vooraan van 13m breed  - publiciteitszone 1,20x4 - 2 dakdoorvoeren   - nutsvoorzieningen tot aan de meter   - elektrisch verdeelbord  - gedeelde septische put en regenwaterput (per 2 units)   - doorvoer naar parking voor laadpaal Het project Martal Bedrijvencentrum zal een unieke locatie vormen in het hart van Vlaanderen waar je omgeven wordt door baanbrekers in de sector.  Martal Bedrijvencentrum is gelegen in Sint-Katelijne-Waver op de scheidingslijn met Mechelen. Met deze centrale ligging in Vlaanderen is dit de ideale uitvalsbasis voor bedrijven met een nationaal werkgebied, maar evenwel voor bedrijven die lokaal toegang willen tot alle regio’s in en rond Mechelen. De site is goed bereikbaar en gelegen op een boogscheut van het oprittencomplex Mechelen-Noord van de E19 Antwerpen-Brussel (afrit Mechelen-Noord).  Het bedrijvencentrum wordt een heuse bouwhub, een plek waar we diverse bedrijven uit de bouwsector op één locatie willen samenbrengen zodat een optimale wisselwerking tussen alle bedrijven op de site ontstaat. Het hele terrein bestaat uit 90 KMO-units, showroomunits en kantoren, verdeeld over vijf gebouwen: A, B, C, D en E.   Voor elk bedrijf zal er een perfect op maat uitgesneden locatie zijn.  All... Renovatieplicht: onbekend
Type vastgoed Commercieel
Prijs 880.500