Te koop Huis

Beschrijving van   

Vergelijk realty's

Te koop Huis

Huis Huis Huis
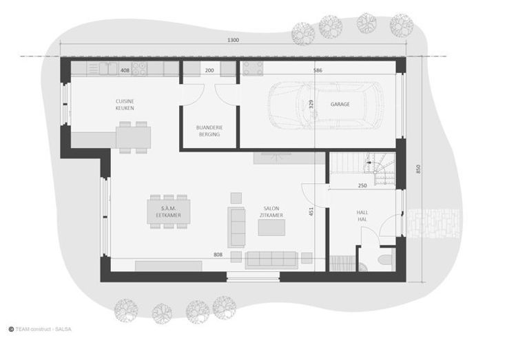
Deze uitzonderlijk mooi gelegen nieuwbouwwoning kan voor u gerealiseerd worden volgens de meest energiezuinige norm dankzij warmtepomp met vloerverwarming, Ventilatie D, driedubbele beglazing en 13 zonnepanelen. Zowel het ontwerp, de indeling als de afwerking kan nog volgens uw smaak aangepast worden. De prijs ALL-IN bedraagt 614.985€ (Grond + registratie + notaris + woning + 21 % btw + aansluitingskosten nutsvoorzieningen). Contacteer ons voor meer info via info@teamconstruct.be of 02/556.47.56
Type vastgoed Huis
Prijs 521.130
Bewoonbare opp. 206
Aantal slaapkamers 4
Aantal badkamers 2