Te koop Appartement

Beschrijving van   

Vergelijk realty's

Te koop Appartement

Appartement Appartement Appartement Appartement Appartement Appartement Appartement Appartement
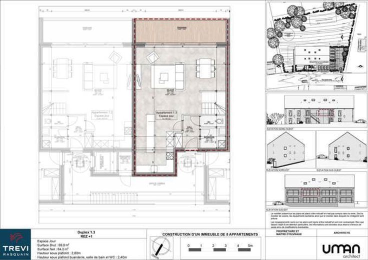
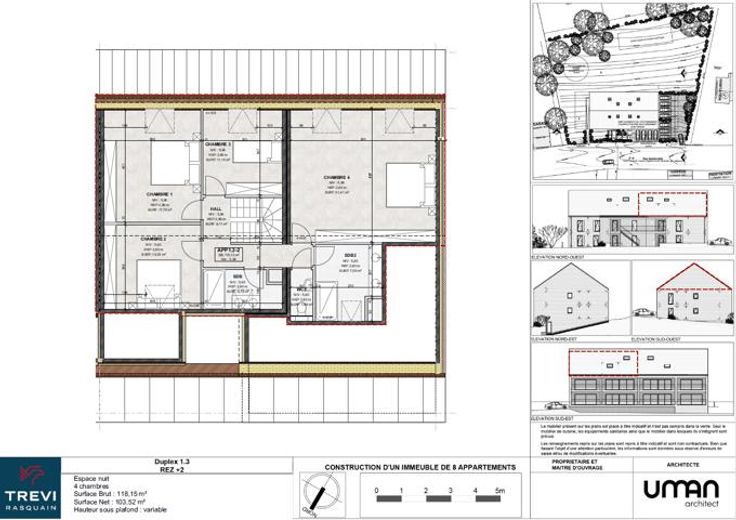
Idéalement situé, dans le charmant village de Marchin, au premier étage d'une nouvelle résidence de 8 appartements, magnifique duplex de 4 chambres de 175,1 m² avec grande terrasse privative de 14 m². Finitions haut de gamme, ascenseur, isolation thermique et acoustique soignée. Le prix inclut cuisine équipée complète, revêtements de sol (carrelage et/ou parquet). Possibilité d'acquérir une cave (5.000€ HTVA) et un emplacement de parking privatif (7.500€ HTVA) en supplément. Paiement à la livraison (prévue 2026). Vente sous régime TVA 21%.
Type vastgoed Appartement
Prijs 320.000
Bewoonbare opp. 175
Aantal slaapkamers 4
Aantal badkamers 2