Te huur Moderne studentenkamer met terras in resid...

Beschrijving van   

Vergelijk realty's

Te huur Moderne studentenkamer met terras in residentie MARIE, Leuv

Moderne studentenkamer met terras in residentie MARIE, Leuv Moderne studentenkamer met terras in residentie MARIE, Leuv Moderne studentenkamer met terras in residentie MARIE, Leuv Moderne studentenkamer met terras in residentie MARIE, Leuv Moderne studentenkamer met terras in residentie MARIE, Leuv
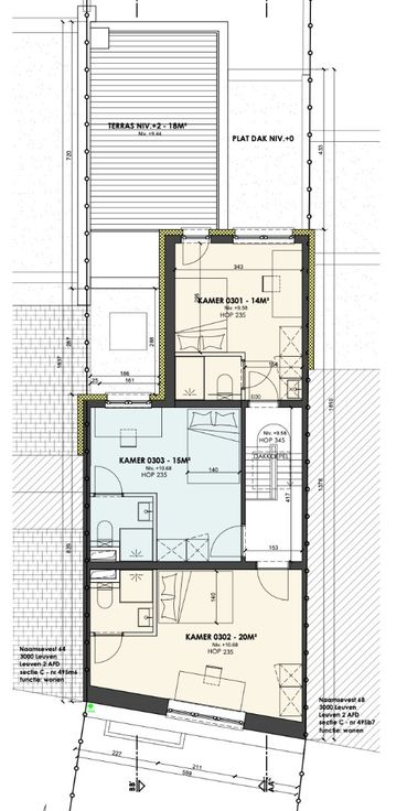
Ben je op zoek naar een studentenkamer in Leuven? Dan is residentie MARIE misschien wel iets voor jou! Deze in renovatie residentie, gelegen in het hart van Leuven, biedt bemeubelde kamers aan met een bewoonbare oppervlakte van 14.00. Elke kamer is voorzien van alle nodige meubels, waardoor je meteen kunt intrekken. Daarnaast beschikt de kamer over een gezellig terras waar je in de zomer heerlijk kunt genieten van de zon. Naast de kamers biedt residentie MARIE ook faciliteiten zoals een fietsenlstalling en een gemeenschappelijke keuken. Hierdoor hoef je je geen zorgen te maken over de opslag van je fiets en kun je samen met je medebewoners gezellig koken en eten. De residentie is in 2025 volledig gerenoveerd, waardoor alles er nog als nieuw uitziet. De ligging is ideaal, vlakbij verschillende faculteiten en op wandelafstand van het centrum van Leuven. Kortom, ben je op zoek naar een comfortabele en gezellige studentenkamer in Leuven? Dan is residentie MARIE zeker het overwegen waard!
Type vastgoed Appartement
Prijs 670
Bewoonbare opp. 14
Gemeubileerd YES