Te koop Huis

Beschrijving van   

Vergelijk realty's

Te koop Huis

Huis Huis Huis Huis Huis Huis Huis Huis Huis Huis Huis Huis Huis Huis Huis Huis Huis Huis Huis Huis Huis Huis Huis Huis
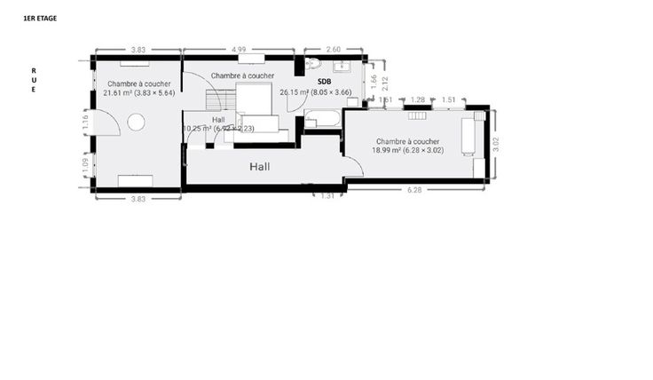
!!! 3% DE FRAIS D'ACHAT !!! La société HOME'S IMMO a le plaisir de vous proposer à la vente cette belle grande maison de maître aux matériaux de qualités/nobles, rénovée en partie 2024, idéalement située à proximité de toutes les facilités ! Le bien est situé rue de Mangombroux 160 à 4800 Verviers. Le bien est composé (275 m² selon PEB) au RDC : d'un grand hall d'entrée, toilette indépendante, salon, une salle à manger (2 parties),  une cuisine équipée, accès direct au jardin/terrasse (EXPOSITION SUD-OUEST),  abri de rangements. A l'entresol (+1) : un palier, une grande chambre à coucher. Au +1 : d’un hall de nuit distribuant deux grandes chambres à coucher ainsi qu'une salle de bains, balcon. A l'entresol (+2): une chambre à coucher, une pièce de rangements. Au +2 : d’un hall de nuit distribuant deux grandes chambres à coucher, une pièce de rangements + accès au grenier. Au+3 : Grenier de +- 36m². Au -1 : grandes caves +-50m² , espace chaufferie, rangements. TECHNIQUES : PEB : D, châssis double et simple vitrage bois, parcelle de 470 m², électricité non-conforme, poêle à bois 2022, chauffage central gaz (2022) + radiateurs, RC : 1093 €, volets, parquet en chêne. PEB: D - n°20231110006485 - 320 kWh/m².an - 87 842 kWh/an. Libre en fonction du propriétaire. ANNONCE NON CONTRACTUELLE - SOUS RESERVE D'ACCEPTATION DU PROPRIETAIRE. Réservez votre visite via e-mail info@homes-immo.be ou via GSM : 0494 60 56 82
Type vastgoed Huis
Prijs 299.000
Bewoonbare opp. 275
Aantal slaapkamers 7
Aantal badkamers 1