Te koop Residentie Bulsom appartement 1.4

Beschrijving van   

Vergelijk realty's

Te koop Residentie Bulsom appartement 1.4

Residentie Bulsom appartement 1.4 Residentie Bulsom appartement 1.4 Residentie Bulsom appartement 1.4
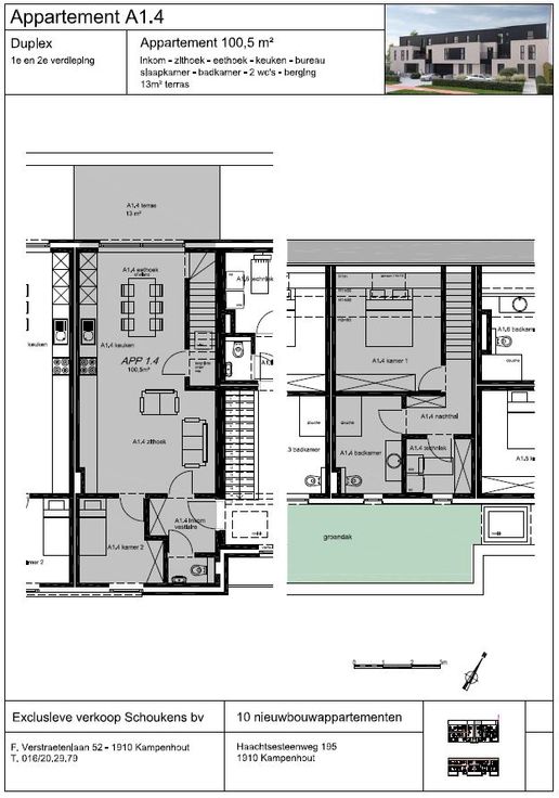
Met trots presenteren we een exclusieve selectie van moderne en stijlvolle appartementen. Of je nu op zoek bent naar een appartement met terras, gelijkvloers met privétuin of duplex met weids uitzicht, Residentie Bulsom heeft het allemaal! Elk appartement is zorgvuldig ontworpen met oog voor detail en biedt een eigentijdse uitstraling die naadloos aansluit bij de omgeving. De gemeenschappelijke tuin is voorzien van een wadi. Residentie Bulsom omvat 10 nieuwbouwappartementen in Kampenhout (Berg). Op wandel-fietsafstand van alle voorzieningen zoals winkels, scholen, openbaar vervoer. Vlotte verbinding naar Brussel – Mechelen – Leuven. Alle appartementen beschikken over 2 slaapkamers alsook een comfortabele leefruimte met open keuken. Dankzij de variërende oppervlaktes (gaande van 94m² tot 115m²) zijn de appartementen de perfecte keuze voor starters, gezinnen en senioren die zorgeloos willen genieten en bovendien een rendabele investering. De kwalitatieve en hedendaagse interieurafwerking gebeurt volgens uw specifieke materiaalkeuzes (tegels, badkamer, keuken), zo maakt u met de inrichting een echte thuis. Voor elke unit is er een ondergrondse garage voorzien. Tevens is er een fietsberging alsook vuilnislokaal aanwezig in de ondergrondse verdieping. Bovengronds kan u enkele staanplaatsen terugvinden, die u optioneel kan bijkopen. Uiterst energiezuinig met zonnepanelen, vloerverwarming op warmtepomp, ventilatie D, regenwaterrecuperatie. Start van de werken 2e helft 2025.
Type vastgoed Appartement
Prijs 345.000
Bewoonbare opp. 101
Aantal slaapkamers 2