Te koop Huis

Beschrijving van   

Vergelijk realty's

Te koop Huis

Huis Huis Huis Huis Huis Huis Huis Huis Huis Huis Huis Huis Huis Huis Huis Huis Huis Huis Huis Huis
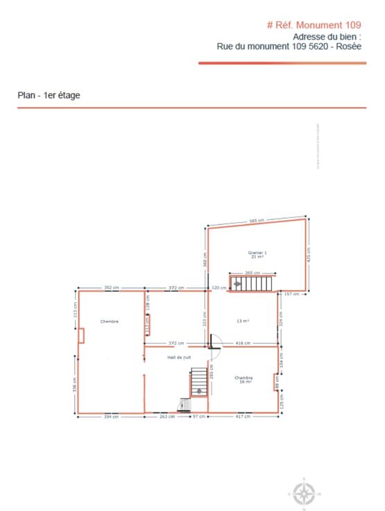
Située dans le charmant village de Rosée, cette spacieuse maison en pierre du pays allie le cachet de l'ancien au confort moderne. Offrant 267 m² habitables sur un terrain de 742 m², elle se compose de 4 chambres, d’un garage, d'un jardin clôturé et d’un grenier aménageable de 80 m², offrant un beau potentiel supplémentaire. Idéale pour une profession libérale, la maison dispose également d'une entrée indépendante dédiée. Rénovée en grande partie en 2023, elle bénéficie d’un PEB C, de châssis PVC double vitrage, d’une chaudière à condensation au mazout ainsi que d’un boiler thermodynamique, garantissant confort et économies d’énergie. Faire offre à partir de 279 000 €. Une maison de caractère à découvrir sans tarder ! Contact: 0472/70.10.76
Type vastgoed Huis
Prijs 279.000
Aantal slaapkamers 4