Te koop Gezinswoning nabij centrum Oelegem

Beschrijving van   

Vergelijk realty's

Te koop Gezinswoning nabij centrum Oelegem

Gezinswoning nabij centrum Oelegem Gezinswoning nabij centrum Oelegem Gezinswoning nabij centrum Oelegem Gezinswoning nabij centrum Oelegem Gezinswoning nabij centrum Oelegem
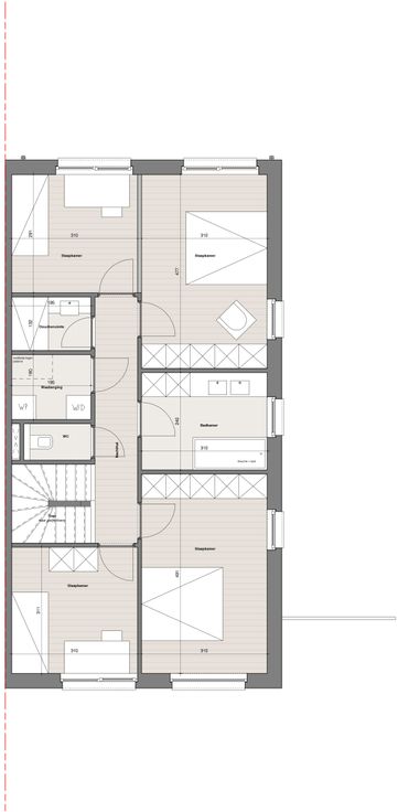
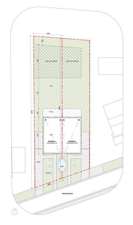
2 halfopen nieuwbouw woningen gelegen in een rustige straat nabij het centrum van Oelegem. De warm moderne architect wordt gecreëerd door gebruik van crepi op de verdieping en een houten gevelbekleding op de gelijkvloers die naadloos doorloopt in de poort. De ultra energiezuinige woningen zijn uitgerust met zonnepanelen, warmtepomp, vloerverwarming, ventilatie D, regenwaterrecuperatie, ... . De woningen worden volledig afgewerkt met kwaliteitsvolle vloeren, sanitaire meubels en keuken. Je komt binnen in de inkomhal met gastentoilet en mogelijkheid tot thuiskantoor. In de lichtrijke leefruimte is een open keuken en een aparte berging. Op de verdieping heb je een apart toilet, badkamer, wasberging en kan je kiezen tussen 3 of 4 slaapkamers. Beide woningen hebben een mooie tuin met mogelijkheid tot het bouwen van een ruim tuinhuis. We zijn gestart aan de bouw en verwachten begin 2026 te kunnen opleveren. Voor meer info mail gerust naar lore@hadibouw.be.
Type vastgoed Huis
Prijs 595.000
Bewoonbare opp. 517
Aantal slaapkamers 4
Aantal badkamers 1