Te koop Appartement

Beschrijving van   

Vergelijk realty's

Te koop Appartement

Appartement Appartement Appartement Appartement Appartement Appartement Appartement Appartement Appartement Appartement Appartement Appartement Appartement
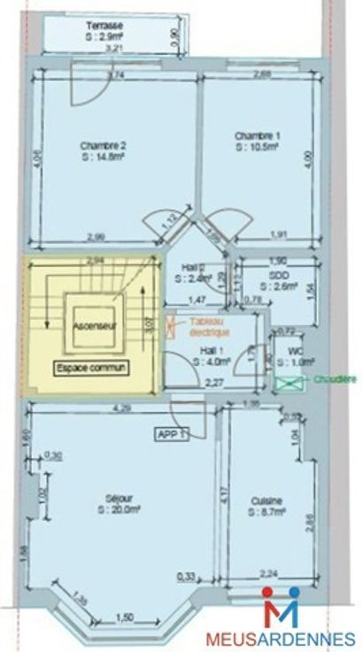
Superbe appartement en ville, récemment rénové, proche de la gare, dans un quartier en pleine expansion Situé au 1er étage avec ascenseur. Compo : hall d'entrée, séjour avec cuisine entièrement équipée, 2 belles grandes chambres dont une avec terrasse , salle de bains, toilettes séparées avec lave-mains et cave. Libre de suite Infos & visites : 0475 23 57 29 Renseignements donnés à titre informatif, et non contractuel. Les surfaces indiquées, mêmes reprises comme "habitables", correspondent aux surfaces mesurées dans le PEB.
Type vastgoed Appartement
Prijs 199.000
Bewoonbare opp. 80
Aantal slaapkamers 2
Aantal badkamers 1