Te koop 2 PERCELEN BOUWGROND MET COMMERCIELE LIGGING

Beschrijving van   

Vergelijk realty's

Te koop 2 PERCELEN BOUWGROND MET COMMERCIELE LIGGING

2 PERCELEN BOUWGROND MET COMMERCIELE LIGGING 2 PERCELEN BOUWGROND MET COMMERCIELE LIGGING 2 PERCELEN BOUWGROND MET COMMERCIELE LIGGING
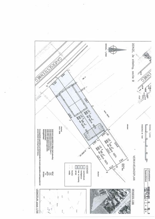
Mogelijkheid tot halfopen of open bebouwing – ideale ligging voor handelspand! Op zoek naar een stuk bouwgrond met uitstekende bereikbaarheid én commerciële zichtbaarheid? Deze eigendom biedt tal van mogelijkheden, zowel voor particuliere als professionele doeleinden! ------------------------------ Ligging Gelegen aan de Gaversesteenweg 362-364 te Deinze, vlakbij de oprit van de E17, op slechts 5 minuten fietsen van het station en centrum van Deinze. Winkels, scholen en openbaar vervoer bevinden zich in de onmiddellijke omgeving. Deze percelen bieden een blijvend, groen uitzicht op het prachtige stadsbos van Deinze! TOPLOCATIE voor wie wonen en werken wil combineren! ------------------------------ Totale oppervlakte: 1.256 m² Mogelijkheden: - 2 halfopen bebouwingen - of (bij verkavelingswijziging): 1 open bebouwing - ook geschikt voor het oprichten van een handelspand/kantoorgebouw (bij verkavelingswijziging) ------------------------------ Indeling van de percelen Perceel 1 - Bouwgrond: 4a 34ca - Aanpalend perceel grond: 2a 16ca - Totale oppervlakte: 6a 50ca Perceel 2 - Bouwgrond: 4a 26ca - Aanpalend perceel grond: 1a 80ca - Totale oppervlakte: 6a 06ca --------------------------------- Interesse? Neem vrijblijvend contact (0473/89.55.82) op voor meer info.
Type vastgoed Grond
Prijs 398.000