Te huur Handelszaak

Beschrijving van   

Vergelijk realty's

Te huur Handelszaak

Handelszaak Handelszaak Handelszaak Handelszaak Handelszaak Handelszaak Handelszaak Handelszaak Handelszaak
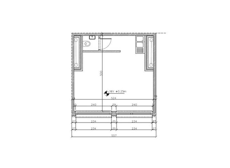
MONT-SUR-MARCHIENNE – Avenue Paul Pastur 403 – IMMO VISION vous propose une surface commerciale ou bureau à louer NEUF ! Idéal pour une activité commerciale (esthétique, détail, coiffure, …), espace commercial profitant d’une super visibilité et offrant de nombreuses possibilités ! Ce bien vous offre une surface de 25 m² accompagnée d’un sanitaire de 1 m². Info Techniques : Chauffage électrique, Électricité conforme, Compteur individuel, châssis double vitrage PVC. LOYER : 700€ + 2 mois de caution. Pour plus d'informations ou une estimation gratuite, n'hésitez pas à nous contacter du lundi au vendredi de 9h30 à 17h30 au 071/11.53.91 ou info@immobiliervision.be ***** Pour recevoir d'autres opportunités en exclusivité, nous vous invitons à suivre notre page Facebook : Immo Vision – Agence Immobilière. ***** Informations données à titre informatif et non contractuel
Type vastgoed Commercieel
Prijs 700
Bewoonbare opp. 25