Te koop Huis

Beschrijving van   

Vergelijk realty's

Te koop Huis

Huis Huis Huis Huis Huis Huis Huis Huis Huis Huis Huis Huis Huis Huis Huis Huis Huis
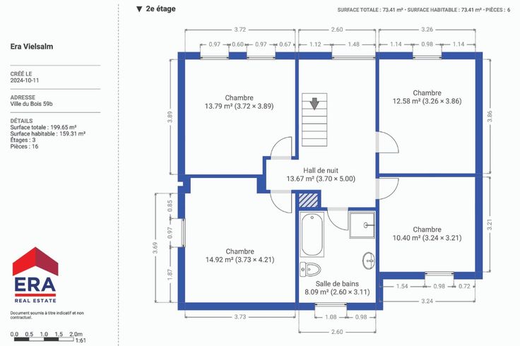
L’agence ERA BLUX à le plaisir de vous présenter cette magnifique maison située sur les hauteurs du village de Ville du Bois, commune de Vielsalm, proche de la frontière Luxembourgeoise et à 2 min du centre-ville et de toutes ces commodités. Elle vous séduira par ces espaces de vie spacieux et lumineux et sans aucun vis à vis. Elle est composée d’une magnifique pièce de vie donnant accès à la terrasse et au jardin, de 5 chambres à coucher, dont une suite parentale avec dressing et salle de douche, d’une salle de bain, d’une buanderie, de deux WC, de halls spacieux permettant la création d’un espace bureau ou bibliothèque, d’un vaste garage avec coin atelier. Son plus grand atout, son jardin donnant une vue imprenable sur la nature. Cette maison est prête à vous recevoir pour y créer de beaux moments familiaux. Intéressé ? Contactez l’agence ERA BLUX au 084/311.888
Type vastgoed Huis
Prijs 385.000
Bewoonbare opp. 159
Aantal slaapkamers 5
Aantal badkamers 2