We are very sorry about the inconvenience. Our service is now under reconstruction in all countries and Belgium.
If you need some help or have questions, please contact
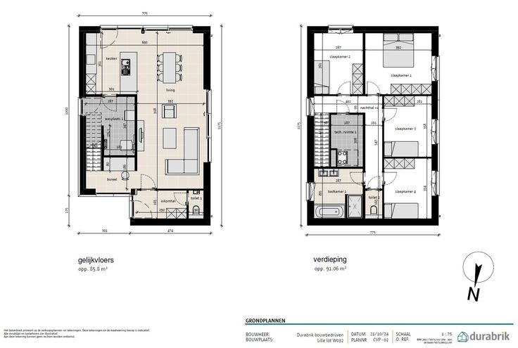
| Type vastgoed | Huis |
| Prijs | 526.000 |
| Bewoonbare opp. | 176 m² |
| Aantal slaapkamers | 4 |
| Aantal badkamers | 1 |