Te koop Huis

Beschrijving van   

Vergelijk realty's

Te koop Huis

Huis Huis Huis Huis Huis Huis Huis Huis Huis Huis Huis Huis Huis Huis Huis Huis Huis Huis Huis Huis Huis Huis Huis Huis
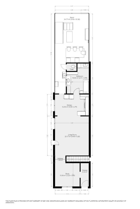
Ben je op zoek naar een halfopen bebouwing met ruime veranda en zuidgerichte tuin? Lees dan zeker verder! Deze instapklare halfopen bebouwing biedt een aangename woonomgeving met een zuidgerichte tuin, een zeer ruime veranda en praktische indeling. De woning beschikt over drie slaapkamers, een extra kamer op het gelijkvloers die perfect kan dienen als bureau of praktijkruimte en een functionele keuken met aansluitende badkamer. De ligging in een rustige straat met vlotte bereikbaarheid maakt deze woning ideaal voor gezinnen en zelfstandigen. -GLV: Je komt binnen in een ruime veranda (35 m²)De keuken (13 m²) biedt toegang tot de badkamer (10 m²), die voorzien is van een ligbad, een wasmeubel en aansluitingen voor een wasmachine en droogkast. De leefruimte (23 m²) biedt voldoende ruimte voor een gezellige zithoek en eetplaats. Achter de leefruimte bevindt zich een extra kamer (10 m²) die perfect geschikt is als bureau of praktijkruimte, met daarnaast een berging (3 m²). -1steV: Hier bevindt zich een nachthal met toegang tot twee ruime slaapkamers. De eerste slaapkamer (14 m²) biedt een aangename ruimte en veel natuurlijk licht. De tweede slaapkamer (15 m²) heeft een vaste trap naar de zolderverdieping, wat extra gebruiksgemak biedt. -2deV: Deze verdieping herbergt een ruime zolderkamer.
Type vastgoed Huis
Prijs 399.000
Bewoonbare opp. 174
Aantal slaapkamers 3
Aantal badkamers 1