Te koop Huis

Beschrijving van   

Vergelijk realty's

Te koop Huis

Huis Huis Huis
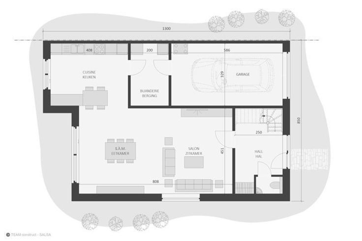
Deze hedendaagse half-open nieuwbouwwoning kan voor u gerealiseerd worden volgens de meest energiezuinige norm dankzij warmtepomp met vloerverwarming, driedubbele beglazing, Ventilatie D en 13 zonnepanelen. De woning kan nog qua indeling en afwerking naar uw smaak worden afgewerkt. De prijs bedraagt ALL-IN 483.950€ (grond + registratie 12% + notaris + woning + 21% btw + aansluiting nutsvoorzieningen). Contacteer ons voor meer info op info@teamconstruct,be of 02/556.47.56
Type vastgoed Huis
Prijs 408.023
Bewoonbare opp. 206
Aantal slaapkamers 4
Aantal badkamers 2