Te koop Huis

Beschrijving van   

Vergelijk realty's

Te koop Huis

Huis Huis Huis Huis Huis Huis Huis
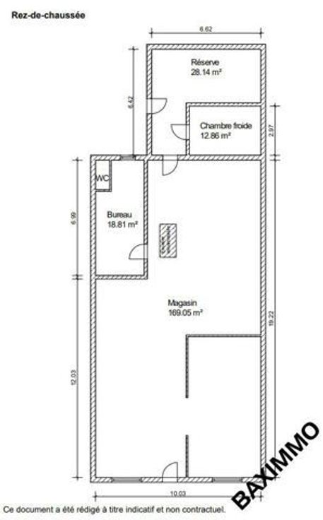
Surface commerciale de 170m² sise au centre de Winenne offrant différentes possibilités d’exploitation. Plusieurs travaux d’aménagements ont déjà été réalisés en 2020. Ce bien se présente donc en parfait état. Il est également envisageable de créer un bel espace à l’étage (logement, bureaux, …). Cet immeuble profite d’un excellent emplacement, au centre du village avec des facilités de parking juste en face. A découvrir ! FAIRE OFFRE A PARTIR DE 175.000€ Cette annonce ne constitue pas une offre, mais seulement un appel à négociation lancé aux candidats acquéreurs. COMPOSITION : Rez-de-chaussée : Surface commerciale de 170m², bureau, réserve et chambre froide. 1ier Etage : Un grenier aménageable et un espace de stockage. Extérieur : Terrasse et jardinet.
Type vastgoed Huis
Prijs 175.000
Bewoonbare opp. 170
Aantal slaapkamers 3