Te koop Duplex

Beschrijving van   

Vergelijk realty's

Te koop Duplex

Duplex Duplex Duplex Duplex Duplex Duplex Duplex Duplex Duplex Duplex Duplex Duplex Duplex Duplex Duplex Duplex Duplex Duplex Duplex Duplex
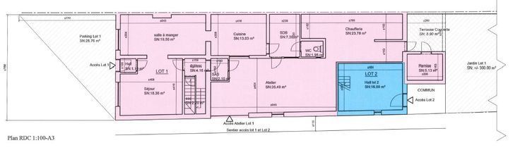
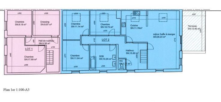
Située dans un quartier paisible, sur les hauteurs de Lasne, charmant duplex implantée en partie avant d'une petite copropriété de 2 lots (maison/duplex + appartement en partie haute arrière), IL développe 145 m² habitables et offre un cadre de vie agréable et lumineux. iL se compose comme suit: au rez-de-chaussée, hall d'entrée qui mène vers un salon et une salle à manger, (pièces à rue de +/-40m²), une cuisine (+/-13m²) et une salle de bain donnant toutes les 2 sur une espace brut polyvalent de +/- 35m² (à développer en surface habitable ou atelier ou stockage), ainsi qu'une chaufferie-buanderie donnant accès à une terrasse et à un beau jardin privatif orienté sud-est; À l'étage, le hall de nuit distribue deux chambres confortables (21m², 10m²) et un bureau (10m²). Une cave complète l’intérieur de la maison. Emplacement de parking privatif. DIVERS : PEB : F - Chauffage central au mazout - Châssis simple vitrage en aluminium - Électricité à remettre en conformité,… *** PRIX DEMANDE DE 220.000€ sous réserve d'offres supérieures.
Type vastgoed Appartement
Prijs 220.000
Bewoonbare opp. 145
Aantal slaapkamers 2
Aantal badkamers 1