Te koop Huis

Beschrijving van   

Vergelijk realty's

Logo
Ligging
6032 MONT-SUR-MARCHIENNE
Contactgegevens
Century 21 Iris-Concept
+32071960367
E-mail deze adverteerder
BEWAREN
DOORSTUREN

Te koop Huis

Huis Huis Huis Huis Huis Huis Huis Huis Huis Huis Huis Huis Huis Huis Huis Huis
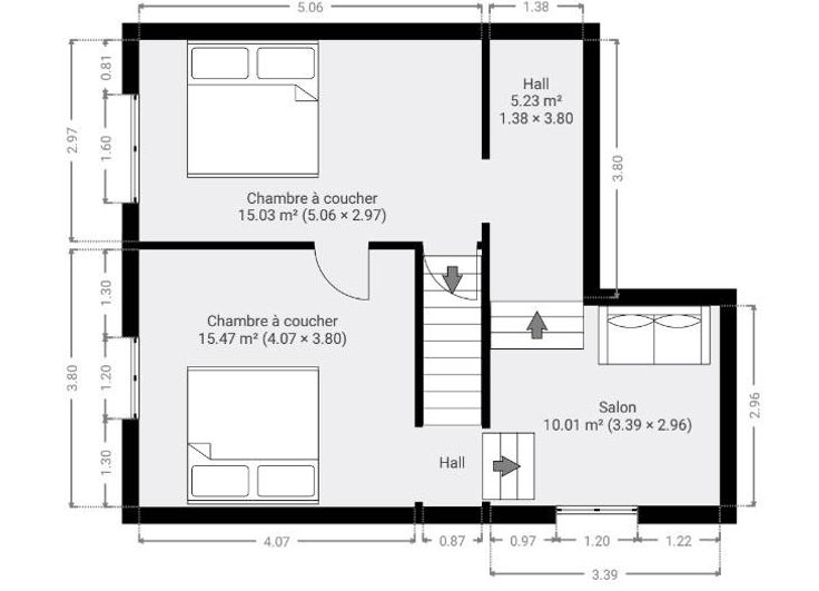
Sorry er is geen nederlandse vertaling beschikbaar. Century21 iris-concept vous propose une maison 2 façades située dans un quartier calme de Mont-sur-Marchienne à quelques minutes de Montigny-le-Tilleul. Cette maison fraichement rénovée offre de beaux volumes modernes, et un abri de jardin. Elle comprend au rez-de-chaussée un salon, une salle à manger, une cuisine équipée, une salle de bain/toilette, et une terrasse couverte. À l’étage, vous trouverez deux chambres, un espace bureau et une mezzanine chaleureuse. Le bien dispose également d'une cave et d'un grenier aménageable pour une troisième chambre spacieuse + dressing, un espace terrasse ou jardinet peut être aménagé à l'avant de la maison (photo 14 de l'annonce) Faire offre à partir de 229?900€ (sous réserve d'acceptation du propriétaire). Infos et visites au 071/96.03.67 ou sur info@century21iris-concept.be
Type vastgoed Huis
Prijs 229.900
Bewoonbare opp. 133
Aantal slaapkamers 2
Aantal badkamers 1