Te koop Huis

Beschrijving van   

Vergelijk realty's

Te koop Huis

Huis Huis Huis Huis Huis Huis Huis Huis Huis Huis Huis Huis Huis Huis Huis
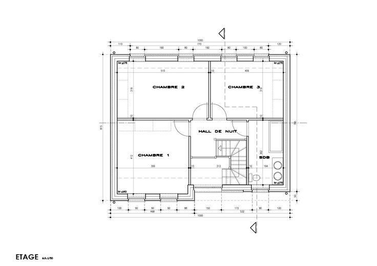
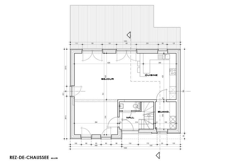
Ceci est une idée de projet, avec une liberté totale de modification pour construire la maison de vos rêves. Nous vous proposons ce projet sur un superbe terrain à bâtir, situé dans un cadre campagnard, dans le charmant village de Silly Ce terrain possède une superficie de 1157 m², une façade de 20 mètres et une profondeur de 50 mètres. L'emplacement de ce terrain est très avantageux, à seulement 3min d'un arrêt de bus et à moins de 5 minutes des commodités. De plus, l'accès à l'autoroute E429 est à moins de 2 minutes, ce qui permet de rejoindre Ath, Namur en un rien de temps. Ce terrain vous est proposé avec un projet de construction d'une maison 4 façades. Description du projet proposé, Maison 4 façades de 150m2 : Au rez-de-chaussée, vous serez accueilli par un hall d'entrée qui mène à un séjour lumineux, accompagné d'une cuisine ouverte, d'une buanderie et d'un WC. À l'étage, un hall de nuit vous dirigera vers une belle salle de bain et 3 chambres spacieuses, toutes conçues pour vous offrir un confort inégalé. Prix : terrain + projet de construction : 316 316€ Hors frais Le prix est donné à titre indicatif et pourra être modifié en fonction des ajustements apportés au projet. Pour plus de renseignements, nous restons disponibles durant les heures de bureau.
Type vastgoed Huis
Prijs 316.316
Bewoonbare opp. 150
Aantal slaapkamers 3
Aantal badkamers 1