Te huur Gebouw voor gemengd gebruik

Beschrijving van   

Vergelijk realty's

Te huur Gebouw voor gemengd gebruik

Gebouw voor gemengd gebruik Gebouw voor gemengd gebruik Gebouw voor gemengd gebruik Gebouw voor gemengd gebruik Gebouw voor gemengd gebruik Gebouw voor gemengd gebruik Gebouw voor gemengd gebruik Gebouw voor gemengd gebruik Gebouw voor gemengd gebruik
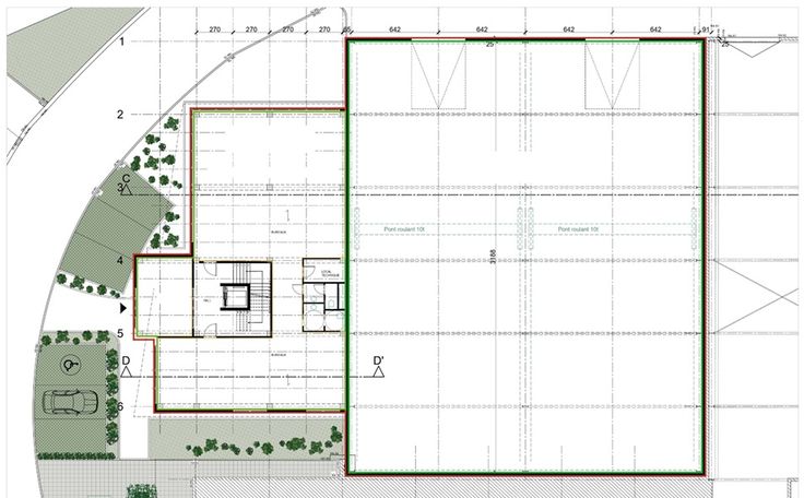
C’est avec grand plaisir que nous vous présentons ce projet de grande qualité, un nouvel immeuble de bureaux et entrepôt à un emplacement exceptionnel à : GOSSELIES, Rue Louis Blériot 21, • en plein centre névralgique de l’Aéropole, avec o Le Biopark et ses entreprises biotechnologiques o CEGELEC o ORES o AGC o Saint Gobain o VOO o … • A proximité immédiate des autoroutes E42 et A54 • A un jet de pierre de l’Aéroport Brussel South-Charleroi L’architecture et la performance énergétique ont été particulièrement soignées Ce nouvel immeuble sera disponible début 2026, avec les finitions suivantes : Partie BUREAUX o De type Open Space o Sols et plafonds finis o En attente de câblage et séparation o Sanitaires opérationnels Partie ENTREPOT o Dalle de sol béton lissé o HSP : 5m50 o Colonnes prévues pour chemins de roulement de deux ponts roulants de 10T Tout renseignement : eric.legrand@immolegrand.com - 0475/69.48.62
Type vastgoed Commercieel
Prijs 15.400
Bewoonbare opp. 1748