Te koop Huis

Beschrijving van   

Vergelijk realty's

Te koop Huis

Huis Huis Huis Huis Huis Huis Huis Huis Huis Huis Huis Huis Huis Huis Huis Huis Huis Huis Huis Huis Huis Huis Huis Huis
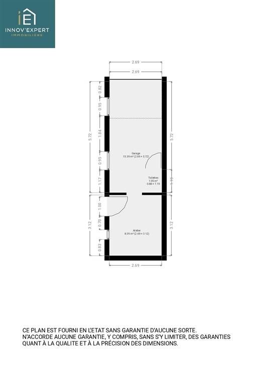
Sorry er is geen nederlandse vertaling beschikbaar. VENDU - INNOV'EXPERT immobilière vous invite à venir découvrir cette coquette habitation de 140 m2 habitables, idéalement située dans une rue calme du village de Tarcienne, à proximité de toutes les commodités. Elle vous séduira par sa luminosité et ses volumes inattendus. Un beau jardin agrémenté d'une terrasse, le tout orienté ouest, terminera de vous convaincre ! Composition au rez-de-chaussée : grand hall d'entrée, espace ouvert de +/- 35 m2 comprenant séjour et salle à manger, pièce cuisine, salle de bain avec WC. Composition étages : pièce de rangement, 2 belles chambres, vaste grenier aménageable de +/- 40 m2. Une parcelle de terrain potentiellement à bâtir assortie d'un garage avec espace atelier se trouve en face de l'habitation et est incluse dans la vente (voir photos). Côté équipements et techniques : châssis en bois avec double vitrage partout, poêle à mazout et radiateurs électriques à accumulation (faible consommation, facture à l'appui), toiture en ardoises, boiler électrique, tout à l'égout, .. RC : 389 eur (possibilité de réduction sur les droits d'enregistrement). Un rafraîchissement global est à prévoir. Belle opportunité à ne pas manquer, n'hésitez pas à nous contacter au 081 84 90 57.
Type vastgoed Huis
Prijs Op aanvraag
Bewoonbare opp. 140
Aantal slaapkamers 2
Aantal badkamers 1