Te koop Bouwgrond

Beschrijving van   

Vergelijk realty's

Te koop Bouwgrond

Bouwgrond Bouwgrond Bouwgrond Bouwgrond Bouwgrond Bouwgrond Bouwgrond Bouwgrond Bouwgrond Bouwgrond Bouwgrond Bouwgrond
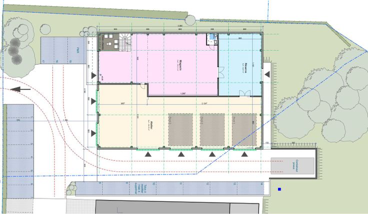
Terrain commercial de 1.544 m² avec permis – Emplacement stratégique à Namur, en bord de N4 ! Situé le long de la très fréquentée Chaussée de Marche (N4) à Nannines, ce terrain de 1.544 m² bénéficie d’une visibilité exceptionnelle et d’un flux de passage constant, offrant une opportunité rare pour les investisseurs ou entrepreneurs à la recherche d’un emplacement commercial de premier ordre. Le bien dispose d’un permis déjà octroyé pour la construction d’un bâtiment commercial de type showroom avec atelier. Ce permis peut toutefois être modifié en fonction du projet de l’acquéreur, ce qui permet une grande souplesse d’aménagement selon votre activité (commerce, services, atelier, etc.). Le bien reprend encore une maison d'habitation qui peut être détruite. Les atouts : •Excellente accessibilité, à proximité des grands axes •Zone dynamique et en plein développement •Forte visibilité depuis la N4 •Permis obtenu, adaptable selon vos besoins Une opportunité à ne pas manquer pour implanter votre activité dans une zone à fort potentiel commercial, sur l'un des derniers terrain disponibles !
Type vastgoed Grond
Prijs 975.000