Te koop Huis

Beschrijving van   

Vergelijk realty's

Te koop Huis

Huis
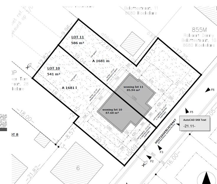
De woningen hebben een bebouwde oppervlakte van ong. 8 op 10 met insprong. In de inkomhal bevindt zich een gastentoilet. De woning beschikt over een lichtrijke leefruimte met mooie glaspartijen en aansluitend een ingerichte keuken. Verder is er op het gelijkvloers een afzonderlijke berging en een inpandige garage. Via de trap in leefruimte gaat u naar de verdieping. Hier bevinden zich een nachthal met afzonderlijk toilet, een badkamer, berging en vier slaapkamers. De woning wordt afgewerkt volgens ons lastenboek LT (= lage temperatuur) E-peil 30 met ruime inspraak in afwerkingsmaterialen. Dit verschilt van ons standaard lastenboek door de aanwezigheid van vloerverwarming zowel op gelijkvloers als op de verdieping waardoor geen radiatoren meer voorzien worden. Er is tevens keuze voor het extra voorzien van een eco-afwerking met warmtepomp en ventilatie D. Bezoek zeker onze modelwoning en maak een afspraak voor een verdere bespreking van de plannen en ons lastenboek.
Type vastgoed Huis
Prijs 356.000
Aantal slaapkamers 4