Te koop Woning Kardinaal Sterckxlaan 140

Beschrijving van   

Vergelijk realty's

Te koop Woning Kardinaal Sterckxlaan 140

Woning Kardinaal Sterckxlaan 140 Woning Kardinaal Sterckxlaan 140 Woning Kardinaal Sterckxlaan 140 Woning Kardinaal Sterckxlaan 140
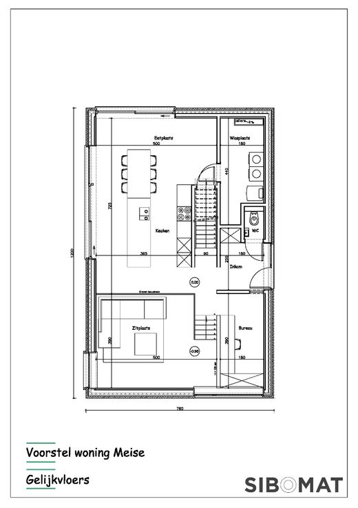
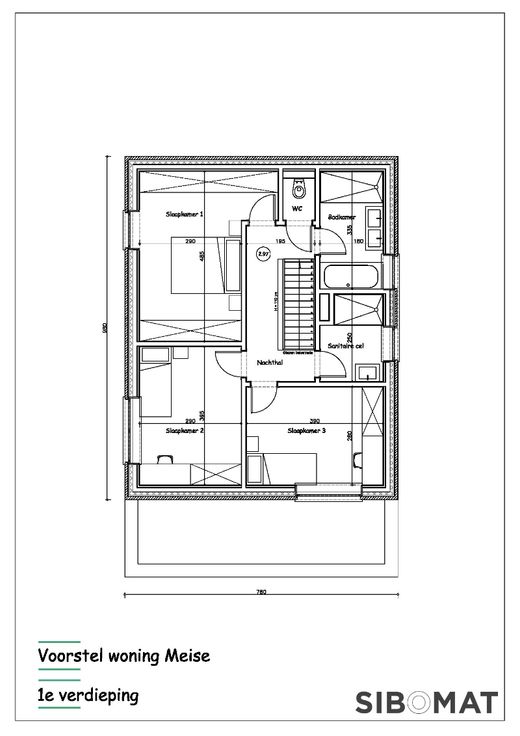
In Meise, aan de Kardinaal Sterckxlaan, bieden we een exclusief perceel bouwgrond aan van 1015 m², waar u samen met Sibomat uw droomhuis op maat kunt realiseren. Hier combineert u de rust van een groene omgeving met de nabijheid van alle voorzieningen. Een unieke kans om uw ideale thuis te creëren! Wij tonen u hier een woning met 3 slaapkamers en 2 badkamers met een oppervlakte van 170 m², dewelke is ontworpen op maat van deze bouwgrond. U bent echter volledig vrij in de keuze van de indeling, stijl of uitstraling van de woning. Samen met u kunnen we een project opbouwen dat volledig aan uw wensen voldoet.   Sibomat heeft veruit de snelste en meest duurzame bouwmethode in België. Bij Sibomat zijn wij trouwens al meer dan 45 jaar koploper met ruim 8.500 realisaties op ons palmares. We realiseren ook uw woning met hoge kwaliteit, precisie en dit in een heel korte tijdspanne. Wenst u meer info omtrent dit project? Neem dan zeker contact op via stephane.truant@sibomat.be of bel naar 0477 60 72 51. Renovatieplicht: onbekend
Type vastgoed Huis
Prijs 672.500
Bewoonbare opp. 170
Aantal slaapkamers 3