Te koop Bouwgrond

Beschrijving van   

Vergelijk realty's

Te koop Bouwgrond

Bouwgrond Bouwgrond Bouwgrond Bouwgrond Bouwgrond Bouwgrond
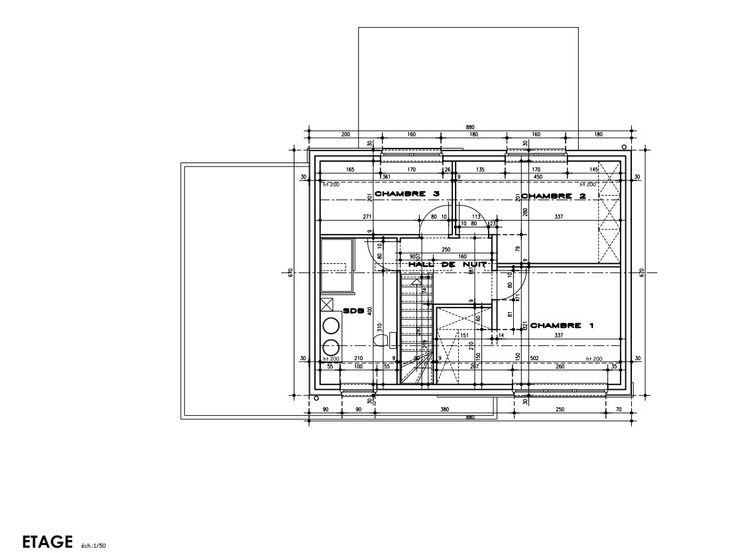
Terrain + Projet De construction Personnalisable, De A-Z Ceci est une idée de projet, avec une liberté totale de modification pour construire la maison de vos rêves. Maisons Compère a le plaisir de vous présenter ce magnifique terrain à bâtir doté d'une superficie de 815 m². Celui-ci possède une façade de 26 mètres et 31 mètres de profondeur. La situation de ce terrain va complètement vous ravir car il est situé dans un très calme et se trouve à moins de 5 minutes en voiture des écoles, commerces, supermarchés, pompe à essence, etc. Ce terrain vous est proposé avec un projet 4 façades avec carport se composant comme suit : Au rez-de-chaussée, vous retrouverez un hall d'entrée avec un WC, un bel espace moderne ouvert sur le séjour, une buanderie ainsi qu'une terrasse et un carport. Un hall de nuit, se trouvant à l'étage, vous donnera accès à 3 chambres à coucher ainsi qu'à une salle de bain entièrement équipée. Ce projet est entièrement modulable et personnalisable en fonction de vos désirs. Prix : terrain + projet de construction : 255 402 euros hors frais Le prix est donné à titre indicatif et pourra être modifié en fonction des ajustements apportés au projet. Les frais d'architecte sont également à prévoir. Pour plus de renseignements, nous restons disponibles durant les heures de bureau.
Type vastgoed Grond
Prijs 90.000