Te koop Villa

Beschrijving van   

Vergelijk realty's

Te koop Villa

Villa Villa Villa Villa Villa Villa Villa Villa Villa Villa Villa Villa Villa Villa Villa Villa Villa Villa Villa Villa Villa Villa Villa Villa Villa Villa Villa Villa Villa
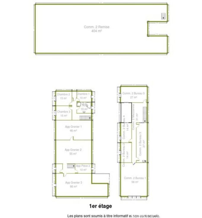
Magnifique ferme Hesbignonne en quadrilatère construite à la base d’un noyau de la fin du XVIIe. Le bâtiment a été profondément revu en fonction de ses destinations au XIXe & XXe siècle. Pour l’heure, il s’agit d’un corps de ferme à multiples facettes … En effet, nous y trouvons un corps de logis, un restaurant pouvant être un second logis ou l’extension de celui existant, un magasin avec bureau, deux showrooms, deux halls de stockages, … Le site est implantée en zone d’habitat à caractère rural sur ± 82 a 76 ca pour le corps de ferme et ± 2 ha 41 a 99 ca de prairies en zone constructible. Sous réserve de permis, de nombreux projets sont envisageable qu’ils soient commerciaux, équestres, résidentiels ou autres. https://www.cofim.be/fr/equestre/immobilier-equestre/ferme-hesbignonne-a-vendre-a-berloz-6699031-IE080
Type vastgoed Huis
Prijs 1.800.000
Bewoonbare opp. 2668
Aantal slaapkamers 3
Aantal badkamers 1