Te huur Appartement

Beschrijving van   

Vergelijk realty's

Te huur Appartement

Appartement Appartement Appartement Appartement Appartement Appartement Appartement Appartement Appartement Appartement Appartement Appartement Appartement
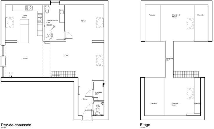
Le bureau CICIMMO vous propose à la location cet appartement de standing spacieux et lumineux style "loft industriel", situé à deux pas de toutes commodités (gare, centre ville, transports en commun, centre commercial, hôpitaux, écoles,...). Composition : RDC :  Un hall d'entrée, un WC séparé, une buanderie, un spacieux et lumineux séjour avec balcon ouvert sur une cuisine hyper équipée, une magnifique salle d'eau comprenant une douche italienne, un évier, meuble de rangements et un WC. A l'étage: Un hall de nuit avec 2 chambres ouvertes avec placards intégrés. Commodités : Ascenseur, chauffage central au gaz individuel, châssis double vitrage, finitions haut de gamme... Loyer : 800€/mois Provisions de charge communes (entretien ascenseur, nettoyage communs...) : 70€/mois Garantie locative : 2 mois (1600€) Etat des lieux : 300 € à prévoir Visites sur rendez-vous : par mail sur immo@cicimmo.be ou par téléphone au 0471/61.39.24 entre 10h et 18h. Document non contractuel et susceptible de modification. Description, photos et mesures sont donné à titre indicatif et non-contractuel. N'engage ni l'agence ni le propriétaire
Type vastgoed Appartement
Prijs 800
Aantal slaapkamers 2