Te koop Huis

Beschrijving van   

Vergelijk realty's

Te koop Huis

Huis Huis Huis Huis Huis Huis Huis Huis Huis Huis Huis Huis Huis Huis Huis Huis
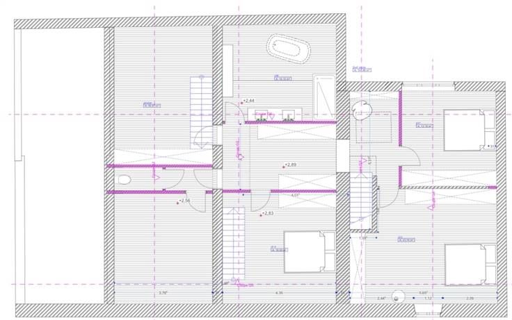
Rue de la Couronne 1 à Gozée : MOOV'immo presenteert dit prachtige huis met 3 voorgevels van ongeveer 280m², gelegen in Gozée, dat momenteel gerenoveerd en volledig gestript wordt. Deze zeldzame woning, vol potentieel, zal zowel grote gezinnen, investeerders als professionals aanspreken. Met zijn indrukwekkende volumes en talrijke verbouwingsmogelijkheden wacht het erop om getransformeerd te worden naar jouw wensen en behoeften. Zodra je binnenkomt, word je begroet door een grote, lichte hal die leidt naar een kantoor of slaapkamer. De begane grond bestaat vervolgens uit een grote split-level woonkamer, een prachtige keuken met uitzicht op de tuin, een bijkeuken, een badkamer met bijkeuken, twee aparte toiletten en een garage met ruimte voor een auto. Boven maken de grote volumes het mogelijk om vijf grote slaapkamers, een badkamer, een apart toilet en een zithoek op de overloop te creëren, volgens de plannen van een architect. Op verzoek is er ook een 3D-projectie van het definitieve ontwerp beschikbaar om je op weg te helpen. Het huis heeft ook kelders, ideaal voor opslag of om naar behoefte extra ruimte te creëren. Buiten heeft de volledig omheinde tuin een terras, een veranda en een zijdoorgang voor voertuigen. Drie grote schuren (30m² - 30m² - 40m²) bieden extra indelingsmogelijkheden voor een werkkamer, atelier of extra garages. Een poort beveiligt de woning en er zijn meerdere parkeerplaatsen beschikbaar (voor maximaal 3 auto's).
Type vastgoed Huis
Prijs 229.000
Bewoonbare opp. 318
Aantal slaapkamers 6
Aantal badkamers 2