Te koop Bouwgrond

Beschrijving van   

Vergelijk realty's

Te koop Bouwgrond

Bouwgrond Bouwgrond Bouwgrond Bouwgrond Bouwgrond Bouwgrond Bouwgrond Bouwgrond Bouwgrond Bouwgrond Bouwgrond Bouwgrond Bouwgrond Bouwgrond Bouwgrond Bouwgrond Bouwgrond Bouwgrond Bouwgrond Bouwgrond Bouwgrond
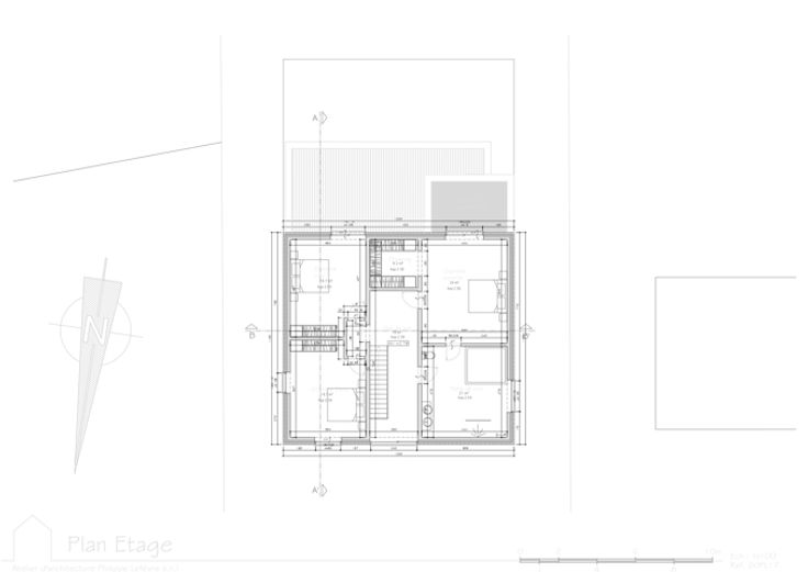
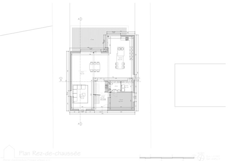
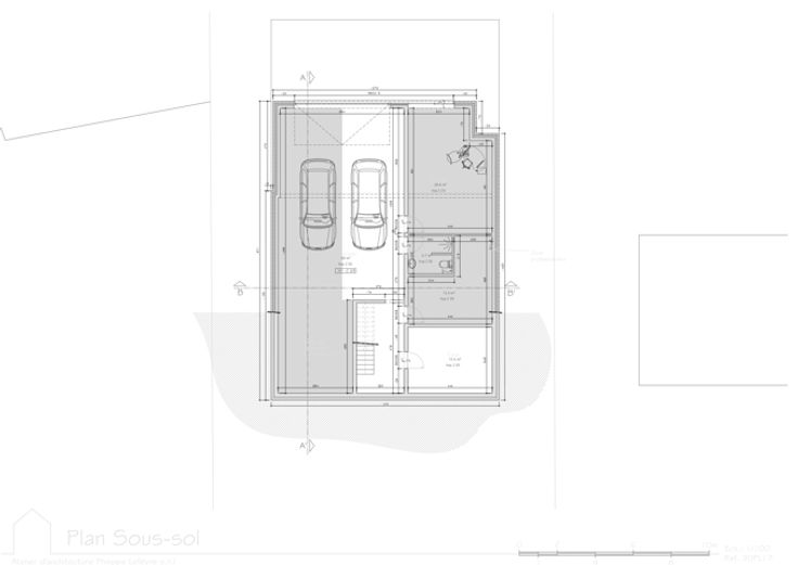
L’agence ALL IN IMMO vous propose une opportunité exceptionnelle : un terrain à bâtir de 915 m² en quartier résidentiel avec un magnifique projet accepté ! Ce terrain rare, situé dans un quartier calme et prisé, bénéficie d’une façade généreuse de 18 mètres et d’une profondeur conséquente de 50 mètres. Idéalement situé, il combine la tranquillité d’un cadre résidentiel avec la proximité immédiate des commodités urbaines pour un quotidien pratique et agréable. Projet accepté pour la construction d'une magnifique villa avec long garage pour plusieurs véhicules et terrasse surplombant la vue nature ! Avec sa grande superficie, ce terrain vous offre un potentiel énorme pour réaliser la maison de vos rêves ou un projet immobilier de grande envergure (sous réserve des autorisations des autorités compétentes). Points forts : Allées latérales Superficie : 915 m², un terrain spacieux pour de multiples projets Façade : 18 mètres, parfait pour une grande villa Profondeur : 50 mètres, offrant un bel espace d’aménagement Emplacement de choix dans un quartier calme et recherché Accès rapide aux commerces, écoles et transports Non situé en zone inondable ni en zone de réaménagement Idéal pour construire votre future résidence ou un projet immobilier rentable C’est l’opportunité rêvée pour réaliser votre projet immobilier. Ne laissez pas passer cette chance ! INFOS & VISITES : Contactez nous dès maintenant au 0487341654 Informations données à titre indicatif et non contractuelles.
Type vastgoed Grond
Prijs 95.000